위치
오산시 진위면 갈곶리
구조재
S.P.F 2X6
1층 면적
110.36m²(33.38평)
외벽 단열재
인슐레이션 R21 가등급 140mm
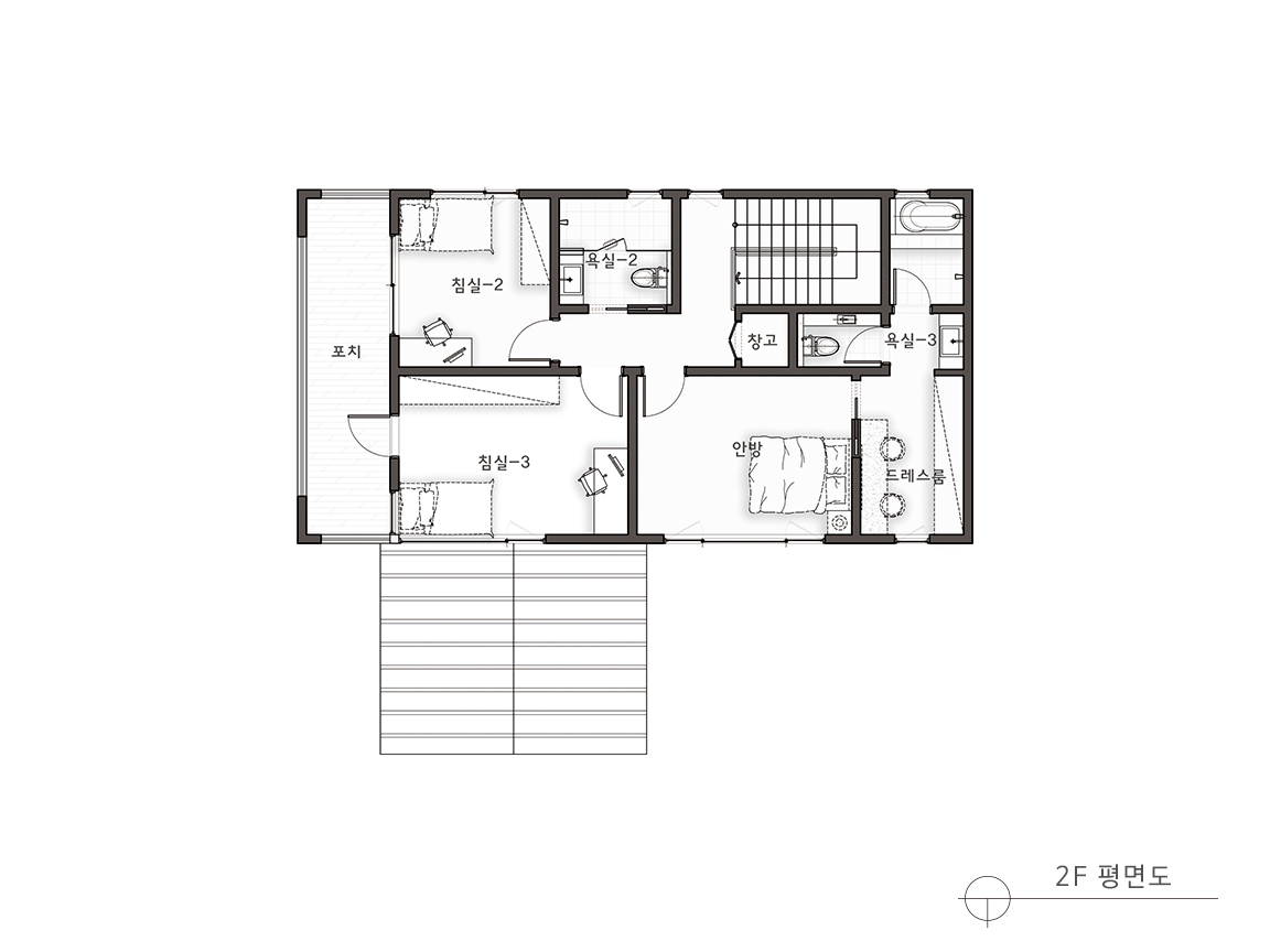
2층 면적
84.96m²(25.70평)
내벽 단열재
인슐레이션 R11 다등급 89mm
전용 면적
195.32m²(59.08평)
지붕 단열재
인슐레이션 R37 가등급 220mm
1층 포치
8.86m²(2.7평)
2층 포치
13.68m²(4.14평)
구조 및 규모
경량목구조 / 지상2층
지붕재
리얼징크 0.5T
외벽재
벽돌
창호재
LG Z:IN 시스템창호 43T 슈퍼로이 3중유리


