51평형 경주 충효동
  • ARCHITECTURE
  • Type
    설계디자인
  • Classification
    모던주택
  • Size
    50평대
  • Location
    경상도
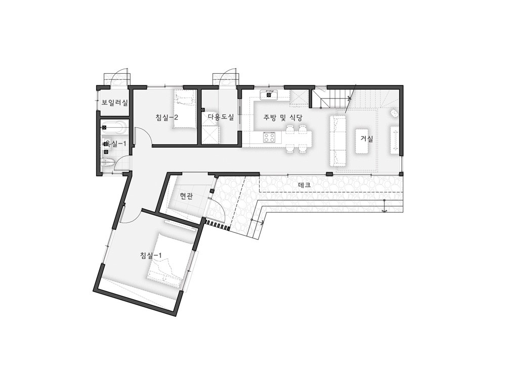
51평형 경주 충효동|대지 진입과 향을 고려한 ㄱ자형태로 1층에 어머니방과 공용공간을 주로 구성하였다.
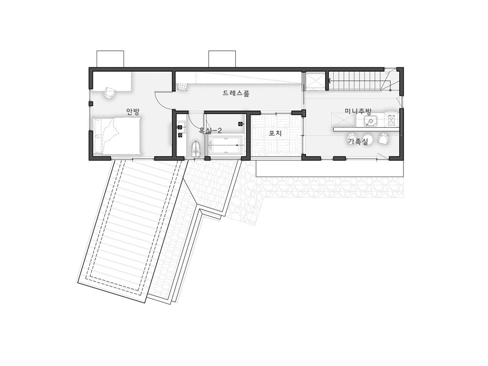
2층은 건축주 부부의 생활공간으로 별도의 미니주방과 가족실, 안방과 부속실들로 구성하였고, 전체적으로 모던함을 추구하였다.
현관으로 진입하는 매스의 경우 어머니방과 같이 구성되어있고 어머니 취향을 고려하여 포인트 세라믹사이딩을 적용하였다.
구조 및 규모 : 미국식 경량목구조 / 지상2층|지붕재 : 리얼징크
외벽재 : TORRAY 14mm 세라믹 사이딩, 현무암 정형, 스타코플렉스, 징크 포인트
창호재 : LG 22mm 로이 2중 유리, 독일식 시스템 창호, 슈퍼세이브5 (LG Z:IN)
구조재 : 철근큰크리트, SPF NO.2
단열재 :인슐레이션(내벽:R-11, 외벽:R-24, 지붕:R-38)
내장재 : 도기질타일, 실크벽지, 포셰린타일
바닥재 : 포셰린타일, 자기질타일, 강마루
천장재 : 인테리어 천장, 등박스, SMC평천장, 스프러스루바
[1층 평면도]|1층면적 : 91.66m²(27.73평)
2층면적 : 58.34m²(17.65평)
전체면적 : 150.00m²(45.38평)
[2층 평면도]|1층면적 : 91.66m²(27.73평)
2층면적 : 58.34m²(17.65평)
전체면적 : 150.00m²(45.38평)