Main 바로가기
SCROLL DOWN
첫화면
회사소개
포트폴리오
설계디자인
전시장&쇼룸
커뮤니티
상담&신청
로그인
회원가입
첫화면
Search
Menu
back
55평형 김포 대벽리
모던주택
50평대
ARCHITECTURE
Type
설계디자인
Classification
모던주택
Size
50평대
Location
수도권/경기
55평형 김포 대벽리|다양한 질감의 외장재로 4면이 정면같은 외관에 차고를 일체화 시킨 모던주택
손님이 많이온다는 건축주의 의견에 공용공간을 넓게 구성하므로써 답답함이 없는 평면구성,
거실과 안방을 남향으로 배치함으로써 더욱 밝고 따뜻한 공간을 연출하였다.
구조 및 규모 미국식 경량목구조 / 지상2층|지붕재 아스팔트 슁글
외벽재 세라믹타일, 징크, 스타코플랙스, 파벽돌
창호재 31mm 로이 3중유리 독일식 시스템창호
구조재 SPF NO.2
단열재 인슐레이션(내벽:R-11, 외벽:R-19, 지붕:R-30)
내장재 실크벽지, 대리석 타일 아트월, 타일, 디자인판넬, 코르크벽지
바닥재 강마루
천장재 인테리어 천장, 등박스
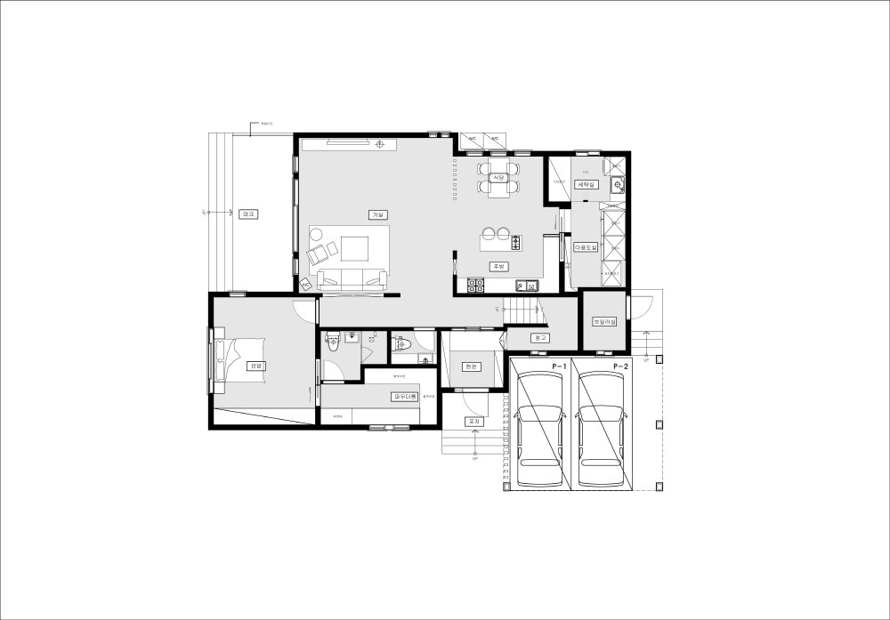
[1층 평면도]|1층면적 132.57m²(40.10평)
2층면적 45.66m²(13.81평)
전용면적 178.23m²(53.91평)
포치(1/2) 2.6평(1.3평
[2층 평면도]|1층면적 132.57m²(40.10평)
2층면적 45.66m²(13.81평)
전용면적 178.23m²(53.91평)
포치(1/2) 2.6평(1.3평
Related Portfolio
50평형 양평 문호리
모던주택
40평대
ARCHITECTURE
63평형 의정부 녹양동
세미모던
60평대
ARCHITECTURE
43평형 고창 산수리2
세미모던
40평대
ARCHITECTURE
110평형 김제 검산동
모던주택
70평대이상
ARCHITECTURE
EXTERIOR DESIGN
50평형 음성 상노리
세미모던
50평대
55평형 남양주 월문리
세미모던
50평대
ARCHITECTURE
EXTERIOR DESIGN
68평형 이천 오남리
클래식주택
60평대
ARCHITECTURE
50평형 진천 기전리
클래식주택
40평대
ARCHITECTURE
66평형 청라 5호
모던주택
60평대
ARCHITECTURE
47평형 김포단지
모던주택
40평대
ARCHITECTURE
142평형 순천 오곡리
세미모던
70평대이상
ARCHITECTURE
EXTERIOR DESIGN
76평형 이천 대흥리
모던주택
70평대이상
ARCHITECTURE
EXTERIOR DESIGN
QUICK MENU
건축상담
가이드북신청
초청장신청
채팅상담
빠른 전화문의
1577-4885
Top
빠른상담
건축상담
가이드북신청
채팅상담