Main 바로가기
SCROLL DOWN
첫화면
회사소개
포트폴리오
설계디자인
전시장&쇼룸
커뮤니티
상담&신청
로그인
회원가입
첫화면
Search
Menu
back
68평형 이천 오남리
클래식주택
60평대
ARCHITECTURE
Type
설계디자인
Classification
클래식주택
Size
60평대
Location
수도권/경기
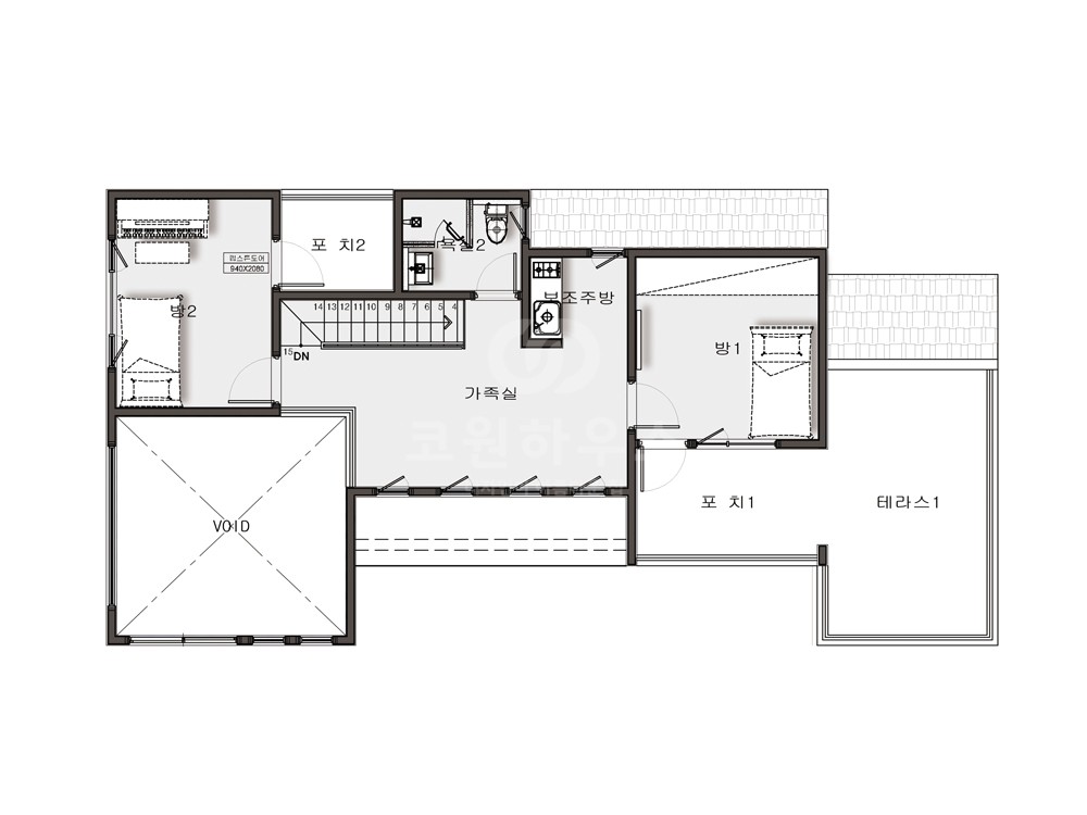
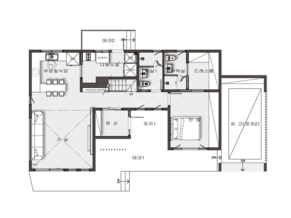
남성적인 분위기의 모던한 느낌이 매력적인 전원주택
건축주 부부가 주로 사용하는 1층에 안방을 마련하였으며, 2층에는 작은 방 2개로 구성되어 있다. 차고 윗부분을 활용하여 넓은 테라스 공간이 생겨 온 가족이 바베큐나 차 한잔의 여유를 즐길 수 있도록 계획하였다.
1층 면적 : 89.38m²(27.04평)
2층 면적 : 54.52m²(16.49평)
전용면적 : 143.90m²(43.53평)
포치면적 : 43.63m²(13.20평)
오픈천정 : 19.35m²( 5.85평)
구조 및 규모 : 미국식 경량목구조 / 지상2층
지붕재 : 아스팔트슁글
외벽재 : 세라믹사이딩, 스타코플렉스, 리얼징크, 합성목재 데크(NewTechWood)
창호재 : 22mm 로이 2중 유리, 독일식시스템창호, 슈퍼세이브5 일반창호(LG Z:IN)
구조재 : SPF NO.2
단열재 : 인슐레이션(내벽:R-11, 외벽:R-24, 지붕:R-38)
내장재 : 실크벽지, 아트월, 타일
바닥재 : 강마루, 타일
천장재 : 인테리어 천장, 등박스
Related Portfolio
45평형 강원 영월 화원리
모던주택
40평대
ARCHITECTURE
49평형 강릉 유천동
클래식주택
40평대
ARCHITECTURE
51평형 경주 충효동
모던주택
50평대
ARCHITECTURE
80평형 서구 경서동 청라 19호
모던주택
70평대이상
ARCHITECTURE
97평형 제주 노형동
모던주택
70평대이상
ARCHITECTURE
65평형 충남 천안 불당동
세미모던
60평대
ARCHITECTURE
54평형 경기 가평 행현리
모던주택
50평대
66평형 하남시 망월동
세미모던
60평대
ARCHITECTURE
55평형 보령 소송리
세미모던
50평대
ARCHITECTURE
76평형 용인 유운리
세미모던
70평대이상
ARCHITECTURE
EXTERIOR DESIGN
69평형 시흥 배곧신도시
모던주택
60평대
ARCHITECTURE
74평 칠곡 득명리
모던주택
70평대이상
ARCHITECTURE
EXTERIOR DESIGN
QUICK MENU
건축상담
가이드북신청
초청장신청
채팅상담
빠른 전화문의
1577-4885
Top
빠른상담
건축상담
가이드북신청
채팅상담