120평형 청라 1호
  • Type
    설계디자인
  • Classification
    모던주택
  • Size
    70평대이상
  • Location
    수도권/경기
125평형 청라 1호|고급스런 기하학 무늬의 포인트월을 접목시킨 모던주택
집안 곳곳에 전원의 아늑함을 모두 갖춘 고급주택
외관의 이미지는 목재의 따뜻하고 자연스러운 느낌을 포인트로 사용하였다.
원형을 겹쳐서 표현한 부분은 '나무로 된 물통에 시원한 빗방울이 떨어지는 모습'을 형상화시켰으며,
목조주택이라는 친환경 주택의 이미지와의 연장선상에서 디자인된 단독주택
구조 및 규모 미국식경량목구조 / 2층구조|지붕재 티타늄 징크
외벽재 세라믹타일 (3종류)
창호재 31mm 로이 3중유리 독일식 시스템창호
구조재 SPF NO.2
단열재 인슐레이션(내벽:R-11, 외벽:R-19, 지붕:R-30)
내장재 실크벽지, 대리석 타일 아트월, 타일, 디자인판넬, 코르크벽지
바닥재 강마루
천장재 인테리어 천장, 등박스
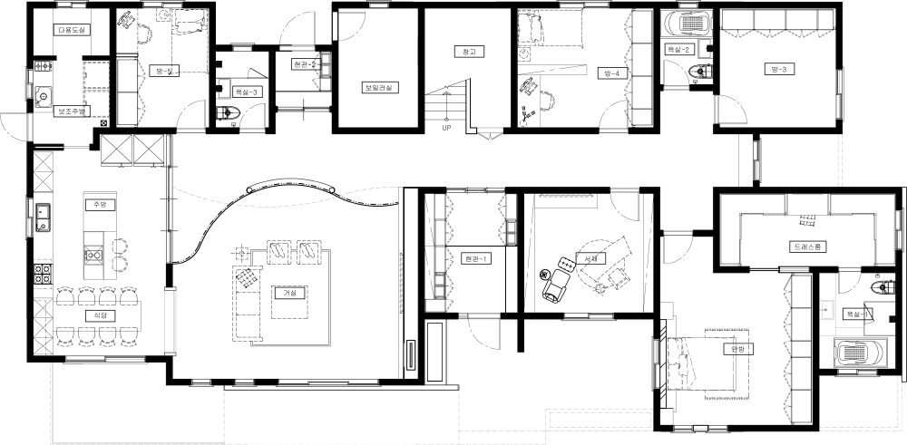
[1층 평면도]|1층면적 264.74m² (80평)
2층면적 133.81m² (40평)
전용면적 398.55m² (120평)
포치(1/2) 10.9평 (5.4평)
[2층 평면도]|1층면적 264.74m² (80평)
2층면적 133.81m² (40평)
전용면적 398.55m² (120평)
포치(1/2) 10.9평 (5.4평)