위치
순천 쌍지리
구조재
철근콘크리트 THK 200
1층 면적
137.01m² (41.44평)
외벽 단열재
비드법보온판 가등급 135mm
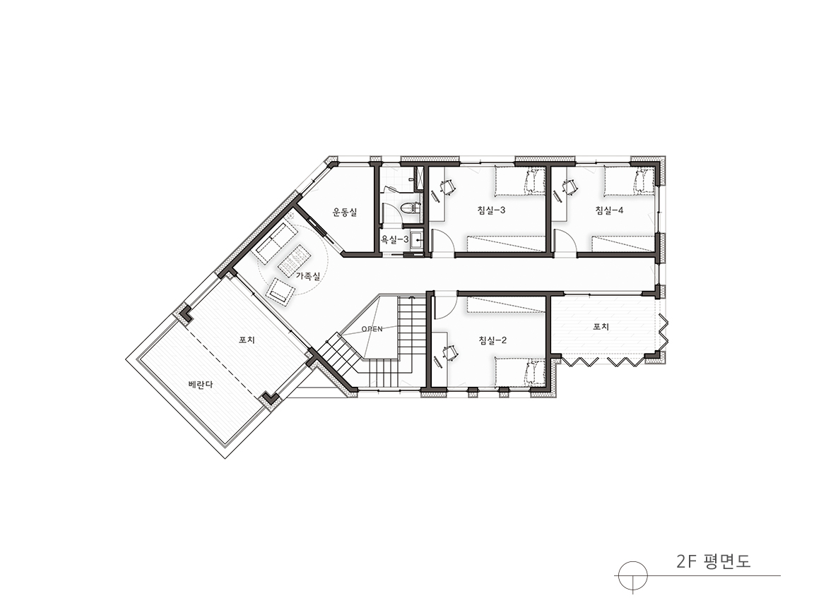
2층 면적
108.91m² (32.94평)
기초 단열재
압출법보온판 가등급 125mm
전용면적
245.92m² (74.38평)
지붕 단열재
비드법보온판 가등급 220mm
1층 포치
6.71m² (2.03평)
2층 포치
29.45m² (8.91평)
구조 및 규모
철근콘크리트 / 지상2층
지붕재
평슬라브지붕
외벽재
라임스톤
창호재
LG Z:IN 시스템창호 43T 슈퍼로이 3중유리


