위치
경기도 양주시 장흥면 석현리
창호재
LG 독일식 시스템창호 43mm
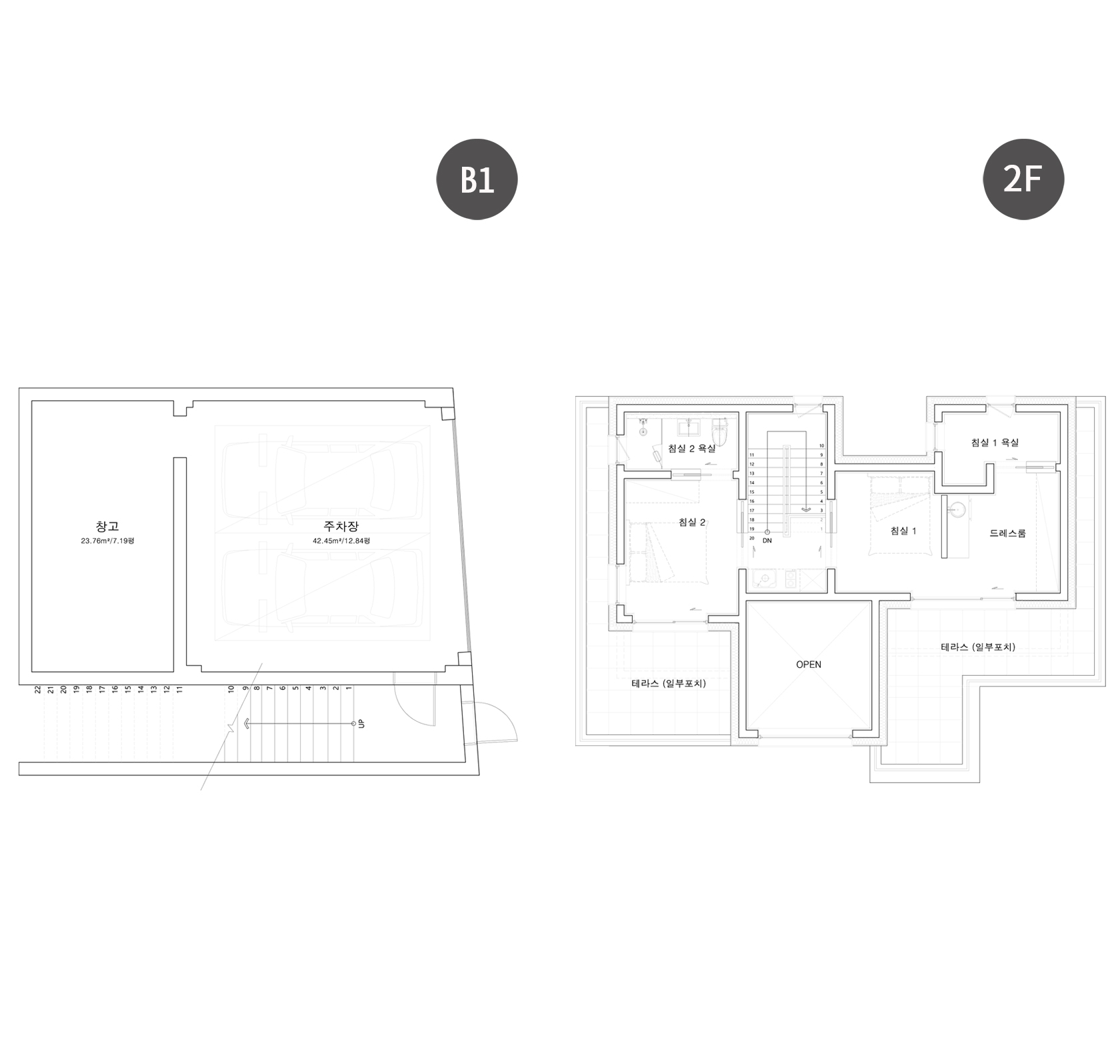
1층 면적
99.76m² (30.18평)
구조재
철근콘크리트 THK 200
2층 면적
58.54m² (17.71평)
외벽 단열재
압출법보온판 가등급 125mm
전용 면적
158.30m² (47.89평)
기초 단열재
압출법보온판 가등급 115mm
지하층 면적
70.89m² (21.44평)
지붕 단열재
압출법보온판 가등급 220mm
데크
27.20m² (8.20평)
포치
27.44m² (8.30평)
구조 및 규모
철큰콘크리트 / 지상2층+지하1층
지붕재
노출 우레탄방수
외벽재
세라믹타일


