56평형 태안 방갈리
  • ARCHITECTURE
  • Type
    설계디자인
  • Classification
    모던주택
  • Size
    50평대
  • Location
    충청도
56평형 태안 방갈리|단조로운 직사각형 평면에 중정을 계획함으로써 프라이버시와 여유로움을 부각한 모던 스타일 주택
1층의 주방, 식당, 그리고 거실은 중정과 데크쪽으로 완전히 개방된 구조로 디자인하였고,
가족이 모여 의사소통을 할 수 있는 거실과 가족실은 넉넉하게 계획하여 자연광을 충분히 받아 밝은 분위기 연출이 가능하도록 하였다.
구조 및 규모 : 미국식 경량목구조 / 지상2층|지붕재 : 아스팔트 싱글
외벽재 : 스타코플렉스, 리얼 징크
창호재 : 22mm 로이2중유리 독일식 시스템 창호(LG Z:IN)
구조재 : SPF NO.2
단열재 : 인슐레이션(내벽:R-11, 외벽:R-21, 지붕:R-32)
내장재 : 벽지, 아트월, 타일, 디자인판넬
바닥재 : 강마루
천장재 : 인테리어 천장, 등박스
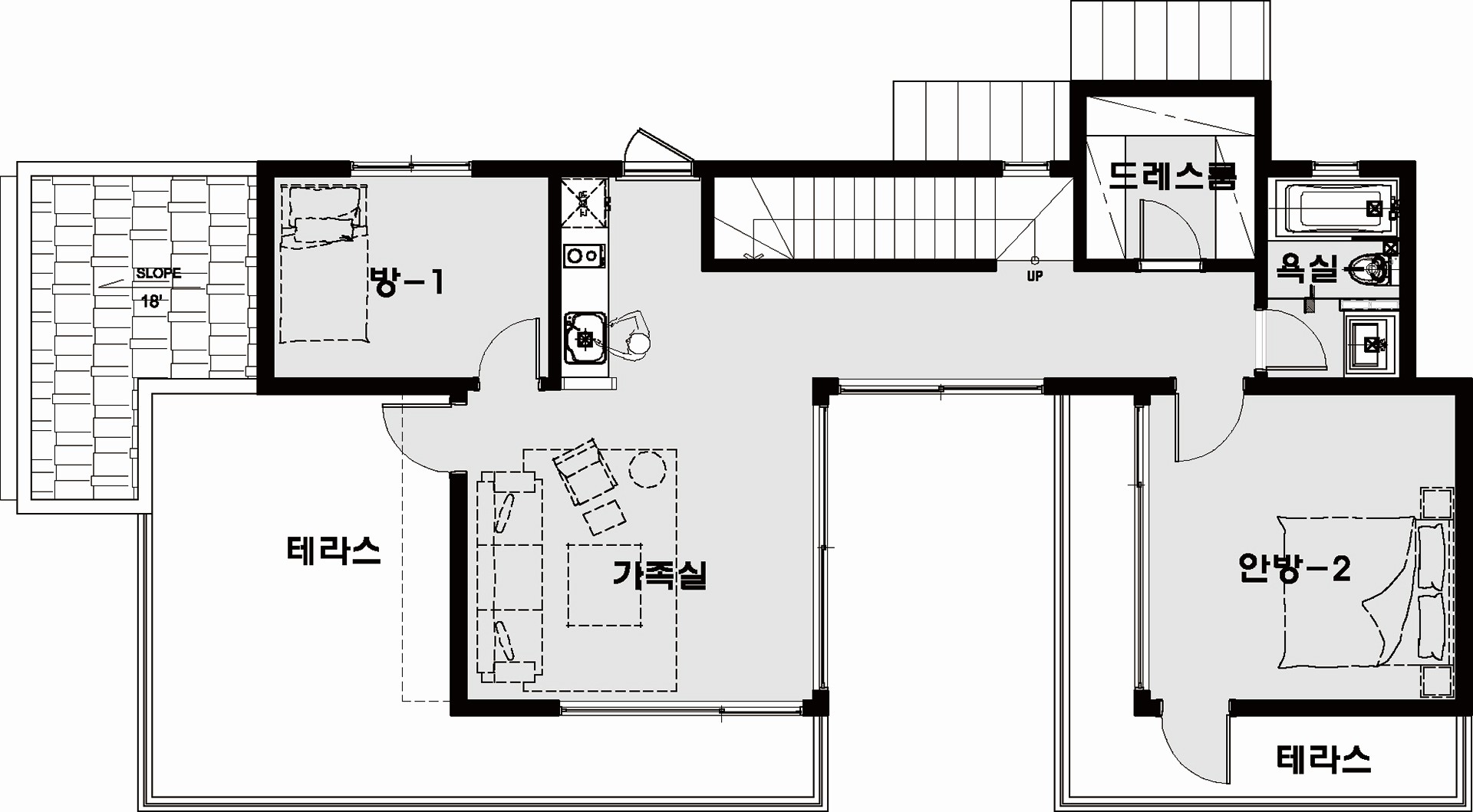
[1층 평면도]|1층면적 : 109.47㎡ (33.11평)
2층면적 : 74.64㎡ (22.58평)
전용면적 : 184.11㎡ (55.69평)
[2층 평면도]|1층면적 : 109.47㎡ (33.11평)
2층면적 : 74.64㎡ (22.58평)
전용면적 : 184.11㎡ (55.69평)