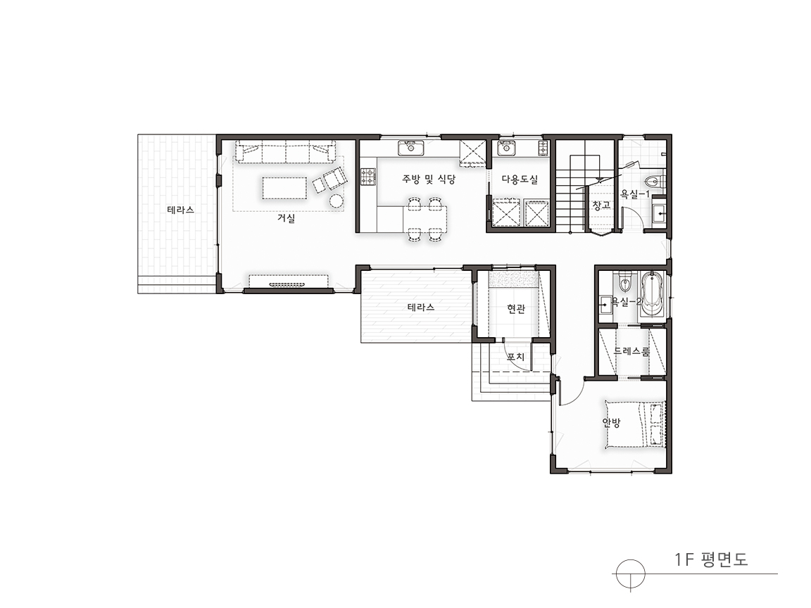
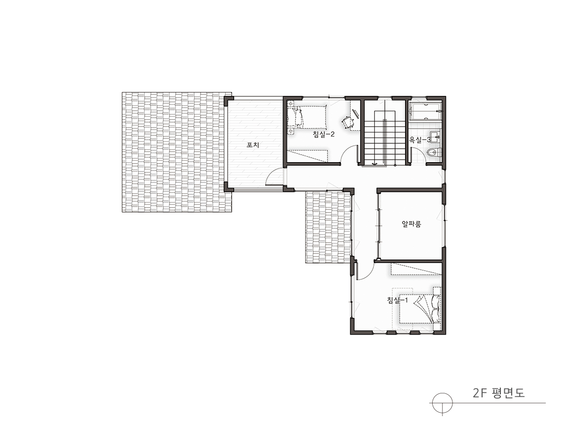
위치
화성시 봉담읍 세곡리
구조재
S.P.F 2X6
1층 면적
108.34m²(32.77평)
외벽 단열재
인슐레이션 R21 가등급 140mm
2층 면적
66.60m²(20.15평)
내벽 단열재
인슐레이션 R11 다등급 89mm
전용 면적
174.94m²(52.92평)
지붕 단열재
인슐레이션 R37 가등급 220mm
1층 포치
3.10m²(0.94평)
2층 포치
15.37m²(4.65평)
구조 및 규모
경량목구조 / 지상2층
지붕재
AL징크 0.7T
외벽재
벽돌
창호재
LG 하우시스 로이3중 유리 43T


