68평형 대구 수성 황금동
  • ARCHITECTURE
  • Type
    설계디자인
  • Classification
    클래식주택
  • Size
    60평대
  • Location
    경상도
68평형 대구 수성 황금동|오픈된 지하주차장을 포인트로 살린 모던한 외관에 붉은 기와를 얹은 도심속 전원주택.
대지의 레벨을 활용해 지하주차장을 외간에서 봤을 때 3층 같은 2층을 계획하였으며, 도심 속 단독주택으로써 마당의 프라이버시를 확보한 계획안이다.
구조 및 규모 : 철근콘크리트+목조주택 / 지하1층, 지상2층|지붕재 : 스페니쉬기와
외벽재 : 스타코플렉스, 고벽돌, 리얼징크, 합성목재 사이딩(NewTechWood)
창호재 : LG 독일식 시스템 창호 22mm 로이 2중 유리(LG Z:IN)
구조재 : SPF NO.2
단열재 : 인슐레이션(내벽:R-11, 외벽:R-24, 지붕:R-38)
내장재 : 실크벽지, 도장, 인테리어 몰딩, 도기질타일
바닥재 : 강마루(헤링본), 폴리싱타일, 자기질타일, 포셰린타일
천장재 : 간접등박스, 실크벽지, smc평천정, 스프러스루바
[지하1층 평면도]|지하1층면적 : 37.20m²(11.25평)
1층면적 : 93.14m²(28.17평)
2층면적 : 55.52m²(16.79평)
전체면적 : 185.86m²(56.21평)
[1층 평면도]|지하1층면적 : 37.20m²(11.25평)
1층면적 : 93.14m²(28.17평)
2층면적 : 55.52m²(16.79평)
전체면적 : 185.86m²(56.21평)
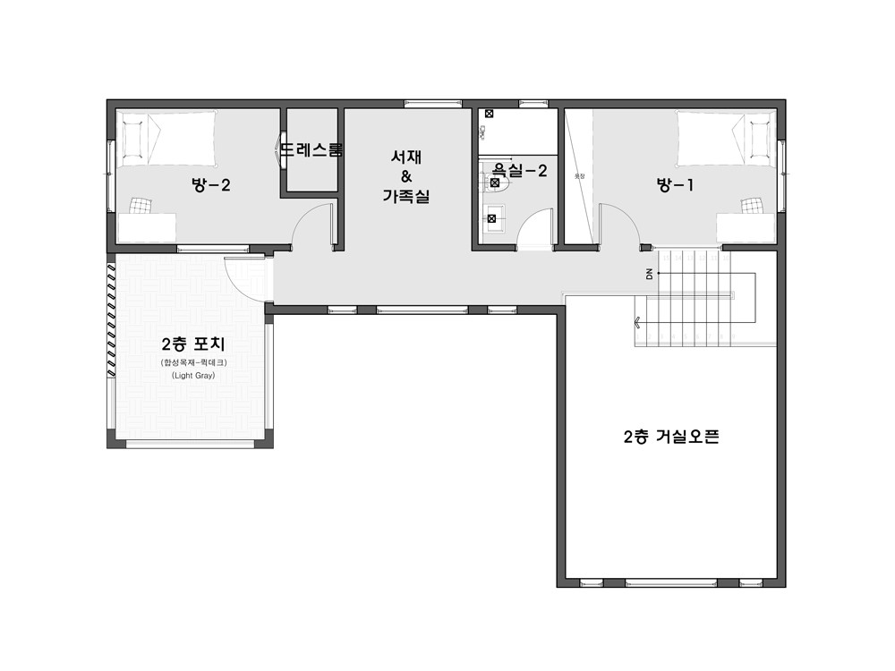
[2층 평면도]|지하1층면적 : 37.20m²(11.25평)
1층면적 : 93.14m²(28.17평)
2층면적 : 55.52m²(16.79평)
전체면적 : 185.86m²(56.21평)