Main 바로가기
SCROLL DOWN
첫화면
회사소개
포트폴리오
설계디자인
전시장&쇼룸
커뮤니티
상담&신청
로그인
회원가입
첫화면
Search
Menu
back
130평 청라 6호
모던주택
70평대이상
ARCHITECTURE
Type
설계디자인
Classification
모던주택
Size
70평대이상
Location
수도권/경기
130평 청라 6호|스타코플랙스와 고벽돌, 현무암이 적절히 조화를 이룬 모던한 상가주택
모던하고 심플한 외관으로 기존의 상가주택의 이미지를 차별화하고자 하였다.
옥상에는 가족이 함께하기 좋은 하늘마당을 계획하였다.
구조 및 규모 : 철근콘크리트조 / 지상3층|지붕재 : 평슬라브지붕
외벽재 : 스타코플렉스, 고벽돌, 현무암, 합성목재
창호재 : 16mm 2중창(D230)
구조재 : 철근큰크리트
단열재 : 비드법 2종 (외벽:120mm, 지붕:180mm)
내장재 : 실크벽지, 아트월, 타일, 디자인판넬
바닥재 : 강마루
천장재 : 인테리어 천장, 등박스
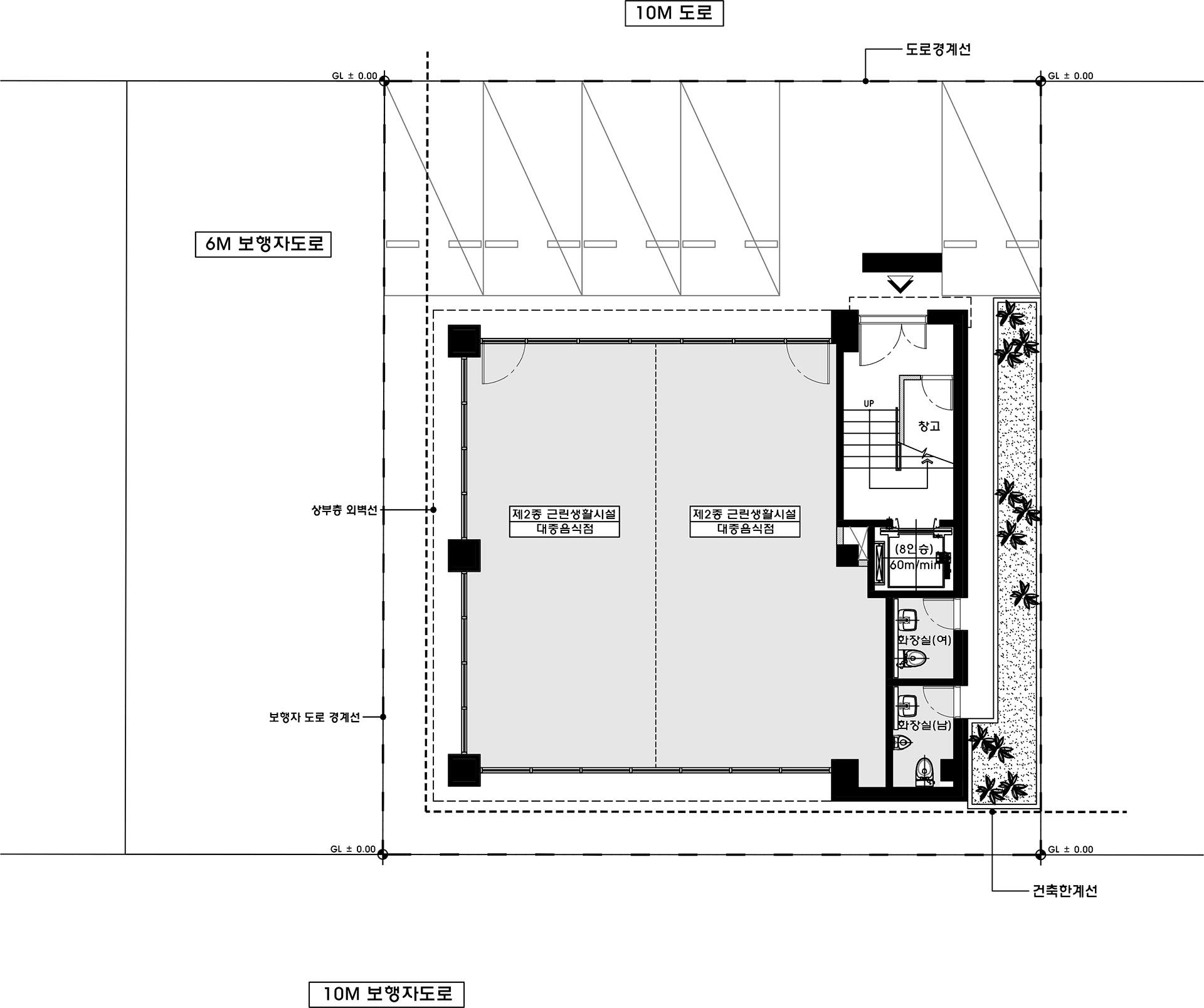
[1층 평면도]|1층(근린생활시설) : 117.65㎡ (35.59평)
2층(다가구주택) : 132.00㎡ (39.93평)
3층(다가구주택) : 132.00㎡ (39.93평)
옥탑 : 16.36㎡ (4.95평)
다락방 : 19.04㎡ (5.76평)
데크 : 11.06㎡ (3.35평)
전용면적: 428.11㎡ (129.51평)
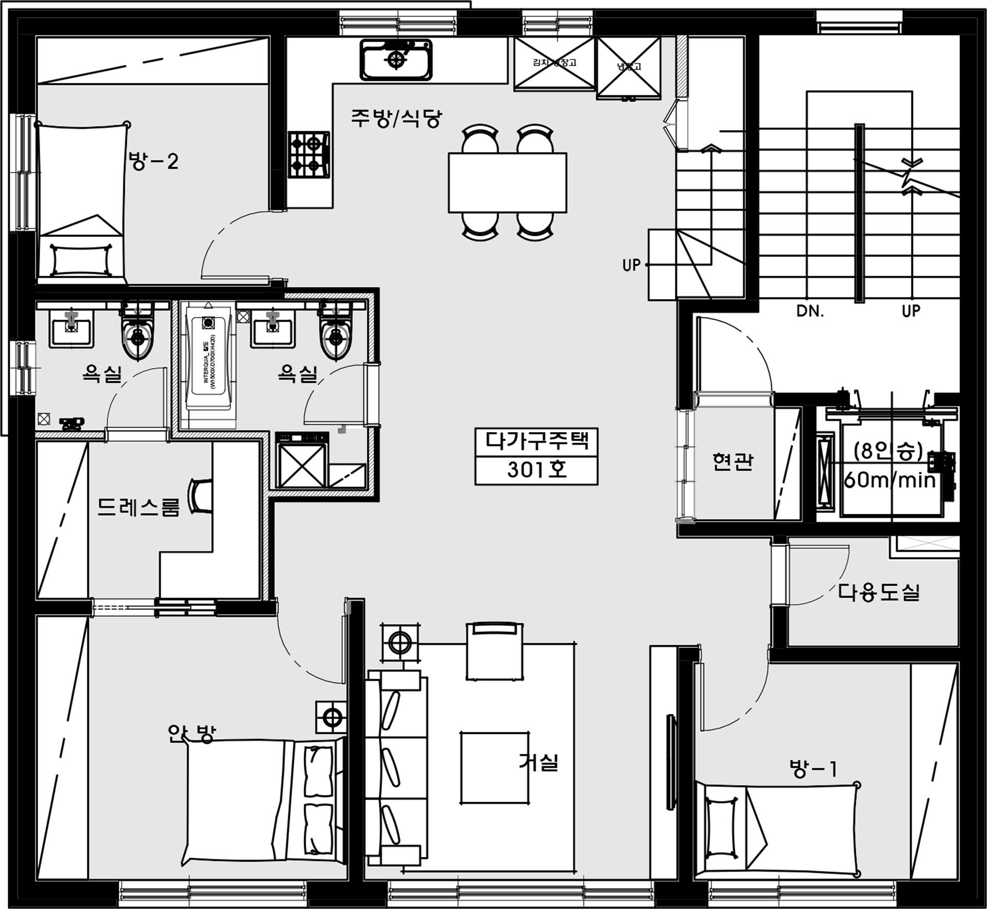
[2층 평면도]|1층(근린생활시설) : 117.65㎡ (35.59평)
2층(다가구주택) : 132.00㎡ (39.93평)
3층(다가구주택) : 132.00㎡ (39.93평)
옥탑 : 16.36㎡ (4.95평)
다락방 : 19.04㎡ (5.76평)
데크 : 11.06㎡ (3.35평)
전용면적: 428.11㎡ (129.51평)
[3층 평면도]|1층(근린생활시설) : 117.65㎡ (35.59평)
2층(다가구주택) : 132.00㎡ (39.93평)
3층(다가구주택) : 132.00㎡ (39.93평)
옥탑 : 16.36㎡ (4.95평)
다락방 : 19.04㎡ (5.76평)
데크 : 11.06㎡ (3.35평)
전용면적: 428.11㎡ (129.51평)
Related Portfolio
51평형 경주 충효동
모던주택
50평대
ARCHITECTURE
92평형 2017년 1월 박람회
모던주택
70평대이상
ARCHITECTURE
70평형 경기 시흥 배곧 정왕동 4호
클래식주택
70평대이상
ARCHITECTURE
46평형 전북 완주 단지_ A
모던주택
40평대
ARCHITECTURE
51평형 옹진 선재리
모던주택
50평대
ARCHITECTURE
35평형 용인 서리
모던주택
30평대
ARCHITECTURE
55평형 김포 대벽리
모던주택
50평대
ARCHITECTURE
148평형 홍성 월산리
모던주택
70평대이상
ARCHITECTURE
EXTERIOR DESIGN
44평형 경산 울옥리3
모던주택
40평대
ARCHITECTURE
27평형 영월 운학리 1동
모던주택
30평대
ARCHITECTURE
67평형 청라 10호
모던주택
60평대
ARCHITECTURE
39평형 광주 영동리
세미모던
30평대
ARCHITECTURE
QUICK MENU
건축상담
가이드북신청
초청장신청
채팅상담
빠른 전화문의
1577-4885
Top
빠른상담
건축상담
가이드북신청
채팅상담