Main 바로가기
SCROLL DOWN
첫화면
회사소개
포트폴리오
설계디자인
전시장&쇼룸
커뮤니티
상담&신청
로그인
회원가입
첫화면
Search
Menu
back
55평형 공주 고성리
세미모던
50평대
Type
설계디자인
Classification
세미모던
Size
50평대
Location
충청도
55평형 공주 고성리|회사 워크샵으로 자주 이용하는 공간에 따라 넓은 식당과 2층의 멀티실 등 목적에 맞게 설계된 주택이다.
전체적으로 1층에 무게감을 심어주기 위해 2층의 볼륨을 작게하여 구성하였고, 볼륨감의 차이로 만들어진 테라스를 적극 이용한 설계이다.
1층에 구들을 통한 황토방을 설계하였고, 건축주의 요구에 따라 '불장난'을 할 수 있는 아궁이와
도란도란 이야기를 나눌수 있게 아궁이 주변으로 넉넉한 공간을 설계하였다.
구조 및 규모 : 미국식 경량목구조 / 지상2층|지붕재 : 아스팔트슁글
외벽재 : 스타코, 세라믹타일
창호재 : 로이 2중유리 독일식 시스템창호
구조재 : SPF NO.2
단열재 : 인슐레이션(내벽:R-13, 외벽:R-21, 지붕:R-32)
내장재 : 벽지, 아트월, 타일, 디자인판넬
바닥재 : 포세린타일, 강마루
천장재 : 인테리어 천장, 등박스
[1층 평면도]|1층면적 :121.26㎡ (36.68평)
2층면적 : 62.31㎡ (18.85평)
전용면적 : 183.57㎡ (55.53평)
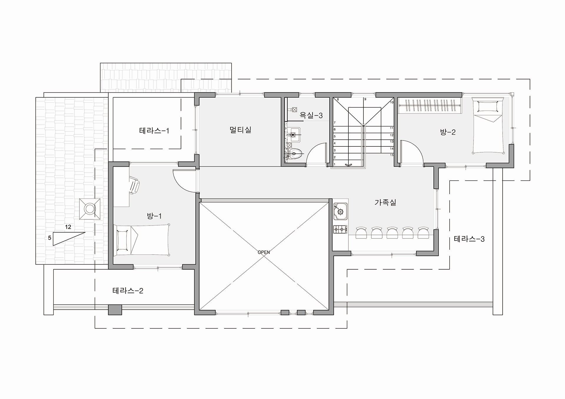
[2층 평면도]|1층면적 :121.26㎡ (36.68평)
2층면적 : 62.31㎡ (18.85평)
전용면적 : 183.57㎡ (55.53평)
Related Portfolio
278평형 용인 어비리
모던주택
70평대이상
ARCHITECTURE
EXTERIOR DESIGN
56평형 아산 장재리
클래식주택
50평대
ARCHITECTURE
80평형 은평 진관동
클래식주택
70평대이상
ARCHITECTURE
170평형 서초구 우면동
세미모던
70평대이상
ARCHITECTURE
60평형 태안 달산리펜션
세미모던
60평대
ARCHITECTURE
55평형 연천 은대리(단층)
클래식주택
50평대
ARCHITECTURE
35평형 용인 서리
모던주택
30평대
ARCHITECTURE
43평형 고창 산수리2
세미모던
40평대
ARCHITECTURE
55평형 김포 대벽리
모던주택
50평대
ARCHITECTURE
53평형 양평 전수리
모던주택
50평대
ARCHITECTURE
30평형 인천 옹진
세미모던
30평대
ARCHITECTURE
133평 청라 7호
세미모던
70평대이상
ARCHITECTURE
QUICK MENU
건축상담
가이드북신청
초청장신청
채팅상담
빠른 전화문의
1577-4885
Top
빠른상담
건축상담
가이드북신청
채팅상담