60평형 홍천 모곡리
  • Type
    설계디자인
  • Classification
    세미모던
  • Size
    60평대
  • Location
    강원도
60평형 홍천 모곡리|북향주택의 단점을 극복하고자 주택내 매스사이의 공간을 두어 빛의유입을 적극적으로 유도하였고
모임지붕을 계획하여 전체적으로 차분하면서 세련된 느낌이 나는 세미모던형주택
외국에서 사업하시는 건축주내외분의 주택으로 동생내외분과 같이 생활가능한 주택으로 계획
1층은 건축주분 공간으로 안방과 공용공간으로 구획하였으며, 2층은 동생내외분과 자녀방으로 계획
강을 바라보는 북향주택으로 남쪽의 창문배치와 사이공간의 구성으로 빛의유입을 극대화했다
거실상부는 오픈하여 시원한 느낌을 더하였고 주방과 식당, 보조공간등은 건축주분의 동선을 고려하여
계획하였다.식당 전면의 공간은 바베큐 가능한 데크공간을 두었으며 2층의 각방에서도 강조망이 가능한 테라스계획을 하였다.
구조 및 규모 : 미국식 경량목구조 / 지상2층|지붕재 : 세라믹 지붕재
외벽재 : 스타코플렉스, 나무사이딩
창호재 : 34mm 로이 3중유리 독일식 시스템창호
구조재 : SPF NO.2
단열재 : 인슐레이션(내벽:R-13, 외벽:R-21, 지붕:R-32)
내장재 : 페인트, 아트월, 타일, 디자인판넬
바닥재 : 포세린타일, 강마루
천장재 : 인테리어 천장, 등박스
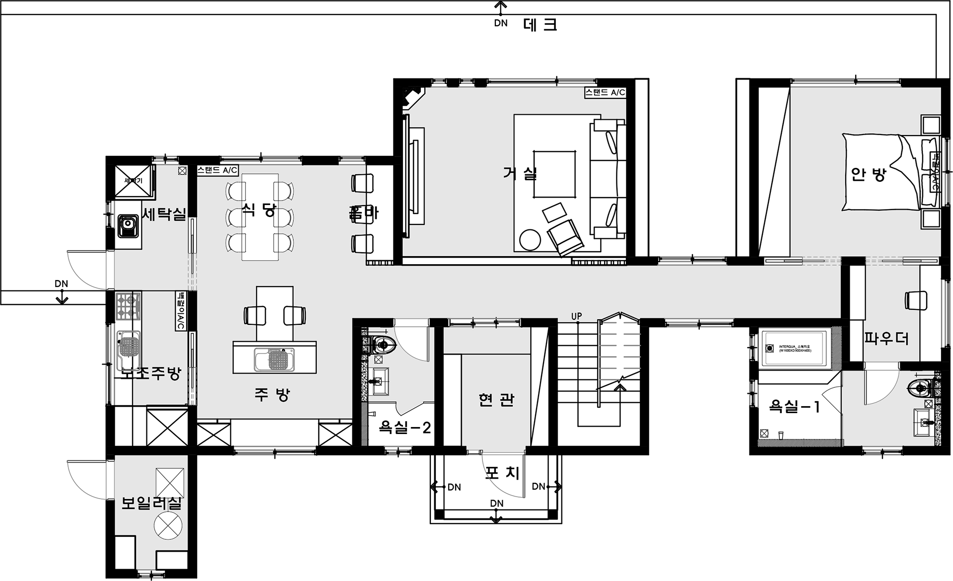
[1층 평면도]|1층면적 : 124.21㎡ (37.58평)
2층면적 : 60.65㎡ (18.35평)
전용면적 : 184.86㎡ (55.92평)
포치 : 10.88㎡(3.29평)
[2층 평면도]|1층면적 : 124.21㎡ (37.58평)
2층면적 : 60.65㎡ (18.35평)
전용면적 : 184.86㎡ (55.92평)
포치 : 10.88㎡(3.29평)