97평형 용인 보정동
  • Type
    설계디자인
  • Classification
    모던주택
  • Size
    70평대이상
  • Location
    수도권/경기
97평형 용인 보정동|건축주의 개인적 취향의 어두운 색을 바탕으로 전체적으로 모던하게 디자인인 스타일.
지하층으로 남자의 공간인 주차공간과 여분의 차고지를 확보하였고, 1층 내부 거실부분은 단 차를 주어 공간감을 확대시켰다.
2층에는 안방과 아이 방으로 기본 구성되었고, 애 완동물공간과 취미공간을 별도로 확보하여 설계하였다.
구조 및 규모 : 철근콘크리트구조+미국식 경량목구조 / 지하1층~지상2층|지붕재 : 리얼징크
외벽재 : 현무암, 스타코, 세라믹사이딩
창호재 : LG 24mm 로이 2중 유리, 독일식시스템창호, 슈퍼세이브5 (LG Z:IN)
구조재 : 철근큰크리트, SPF NO.2
단열재 :인슐레이션(내벽:R-11, 외벽:R-21, 지붕:R-32)
내장재 : 실크벽지, 대리석타일 아트월, 타일, 디자인판넬
바닥재 : 강마루
천장재 : 인테리어 천장, 등박스
[지하1층 평면도]|지하1층면적 : 89.18m²(26.98평)
1층면적 : 98.38m²(29.76평)
2층면적 : 88.38m²(26.73평)
다락면적 : 34.10m²(10.32평)
포치면적 : 11.38m²( 3.44평)
전체면적 : 275.94m²(83.47평)
[1층 평면도]|지하1층면적 : 89.18m²(26.98평)
1층면적 : 98.38m²(29.76평)
2층면적 : 88.38m²(26.73평)
다락면적 : 34.10m²(10.32평)
포치면적 : 11.38m²( 3.44평)
전체면적 : 275.94m²(83.47평)
[2층 평면도]|지하1층면적 : 89.18m²(26.98평)
1층면적 : 98.38m²(29.76평)
2층면적 : 88.38m²(26.73평)
다락면적 : 34.10m²(10.32평)
포치면적 : 11.38m²( 3.44평)
전체면적 : 275.94m²(83.47평)
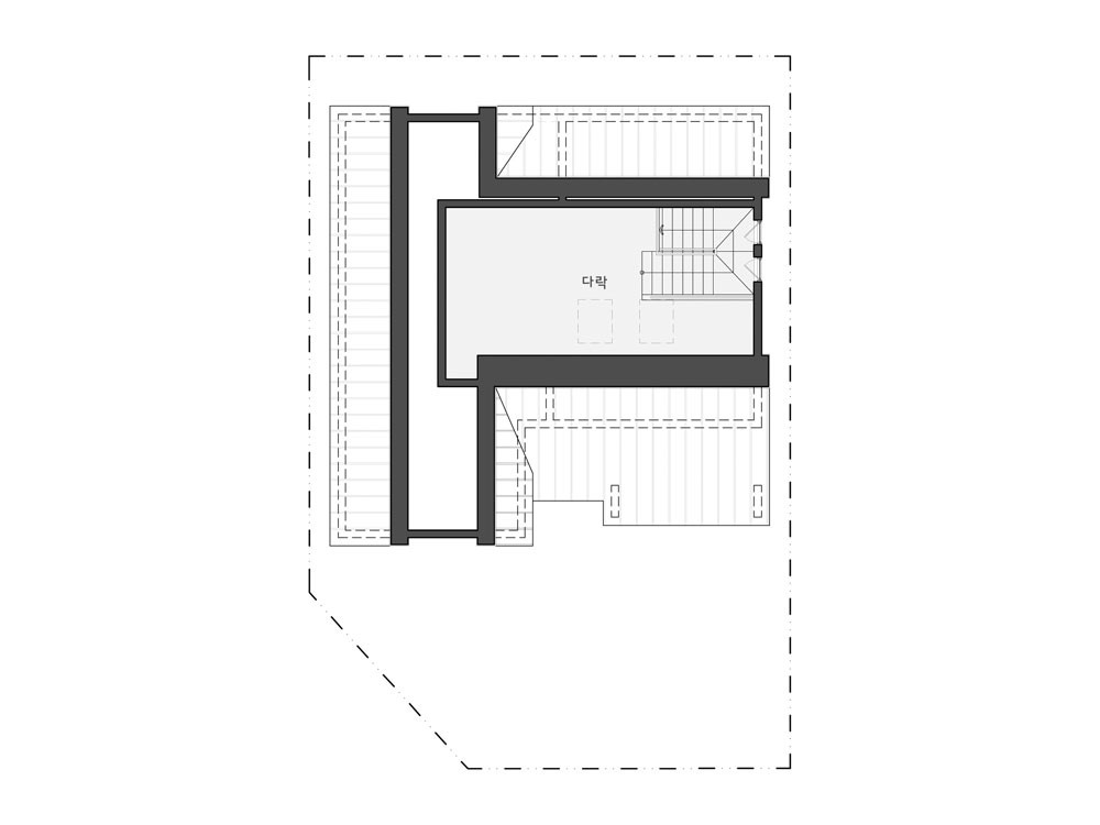
[다락 평면도]|지하1층면적 : 89.18m²(26.98평)
1층면적 : 98.38m²(29.76평)
2층면적 : 88.38m²(26.73평)
다락면적 : 34.10m²(10.32평)
포치면적 : 11.38m²( 3.44평)
전체면적 : 275.94m²(83.47평)