132평 제주도 도남동
  • Type
    설계디자인
  • Classification
    모던주택
  • Size
    70평대이상
  • Location
    제주(기타도서)
132평 제주도 도남동|한라산을 바라보는 넓은 조망창과 옥상데크. 제주의 자연이 담긴 곡선형 지붕의 3층 모던주택
반영구적인 세라믹타일 외장재와 티타늄징크 지붕을 사용함으로써 입체감을 통해 심플하면서
단조롭지 않은 디자인 계획과 넓은 조망창과 옥상데크의 계획으로 제주도 한라산의 풍경이 담긴 모던주택.
구조 및 규모 철근콘크리트 구조 / 지상3층|지붕재 티타늄 징크
외벽재 세라믹타일 (3종류)
창호재 24mm 로이 2중유리 LG 하이샤시, 시스템창호(일부)
단열재 외벽 : THK70 EPS 단열재(가등급)
지붕 : THK120 EPS 단열재(가등급)
내장재 천연 대리석 아트월, 다이켄판넬, 타일, 디자인판넬, 흡음타공판넬
바닥재 다이켄마루, 수입타일천장재 다이켄 천정재, 등박스
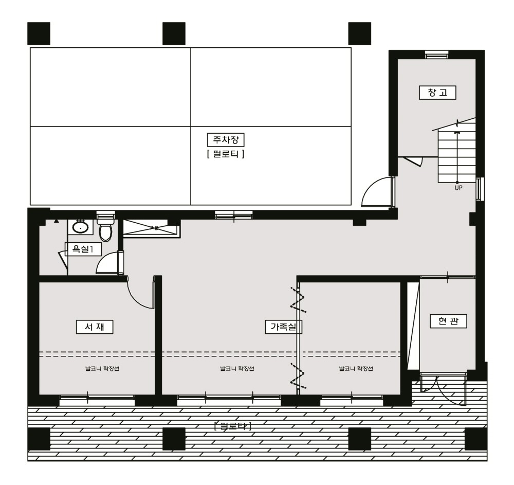
[1층 평면도]|1층면적 159.75m²(48.32평)
2층면적 179.91m²(54.42평)
3층면적 81.45m²(24.64평)
포치(1/2) 8.5m²(4.3평)
[2층 평면도]|1층면적 159.75m²(48.32평)
2층면적 179.91m²(54.42평)
3층면적 81.45m²(24.64평)
포치(1/2) 8.5m²(4.3평)
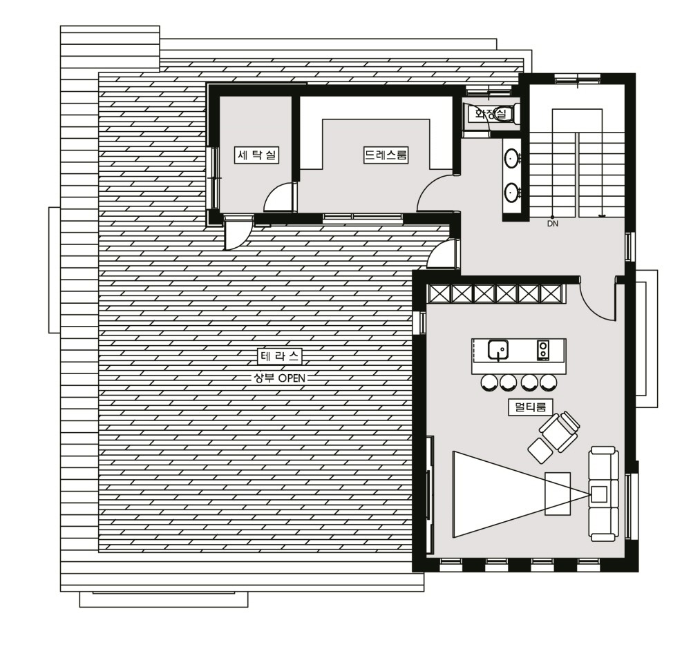
[3층 평면도]|1층면적 159.75m²(48.32평)
2층면적 179.91m²(54.42평)
3층면적 81.45m²(24.64평)
포치(1/2) 8.5m²(4.3평)