48평형 양산 대석리
  • ARCHITECTURE
  • Type
    설계디자인
  • Classification
    세미모던
  • Size
    40평대
  • Location
    경상도
48평형 양산 대석리|브라운계통의 세라믹사이딩을 포인트로 사용하여 중후하고 따뜻한 느낌이 돋보이는 주택
넓은 마당으로 편하고 안전하고 오갈수 있는 넓은 돌데크를 집 전면에 설치하였으며,
1층은 물론 2층에서도 주변 경관을 조망할 수 있는 큰 창을 설치하였다.
안방과 마주한 곳에 황토방을 두고 거실로 이어지는 넓은 복도를 두어 건축주 부부의 노후 생활에 불편함이 없는 공간 구성을 하였다.
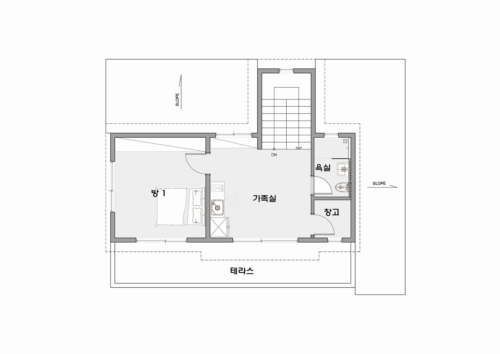
2층은 자녀의 생활공간으로 미니주방을 두어 1층과 2층의 생활영역이 독립성을 가질 수 있도록 하였다.
구조 및 규모 : 미국식 경량목구조 / 지상2층|지붕재 : 세라믹기와/아스팔트슁글
외벽재 : 스타코플렉스, 세라믹사이딩
창호재 : 22mm 로이 2중유리 독일식 시스템창호
구조재 : SPF NO.2
단열재 : 인슐레이션(내벽:R-13, 외벽:R-21, 지붕:R-32)
내장재 : 실크벽지, 아트월, 타일, 디자인판넬
바닥재 : 포세린타일, 강마루
천장재 : 인테리어 천장, 등박스
[1층 평면도]|1층면적 : 101.79㎡ (30.79평)
2층면적 : 50.38㎡ (15.24평)
전용면적 : 152.17㎡ (46.03평)
포치+데크 : 1.88+15.62㎡ (17.5평)
[2층 평면도]|1층면적 : 101.79㎡ (30.79평)
2층면적 : 50.38㎡ (15.24평)
전용면적 : 152.17㎡ (46.03평)
포치+데크 : 1.88+15.62㎡ (17.5평)