Main 바로가기
SCROLL DOWN
첫화면
회사소개
포트폴리오
설계디자인
전시장&쇼룸
커뮤니티
상담&신청
로그인
회원가입
첫화면
Search
Menu
back
50평형 양평 문호리
모던주택
40평대
ARCHITECTURE
Type
설계디자인
Classification
모던주택
Size
40평대
Location
수도권/경기
56평형 양평 문호리|고급스러운 세라믹 타일과 노콘페널의 조화 적절하며,
거실앞쪽으로 캔틸레버 구조가 이상적인 박스형 모던스타일
현관옆에 창고를 배치함으로써 사용자의 편리를 배려했고, 복도면에 일자계단과 주방과 거실의 일자배열로
넓어보이는 평면을 계획하였으며,2층으로 올라가면 풍경좋은 방향으로 통창이 설치되 확 트인 경관이 펼쳐진다.
구조 및 규모 : 미국식 경량목구조 / 지상2층|지붕재 : 이중그림자슁글
외벽재 : 세라믹타일, 노출콘크리트페널, 스타코플랙스
창호재 : 22mm 로이 2중유리 독일식 시스템창호
구조재 : SPF NO.2
단열재 : 인슐레이션(내벽:R-13, 외벽:R-21, 지붕:R-32)
내장재 : 실크벽지, 아트월, 타일, 디자인판넬
바닥재 : 강화마루
천장재 : 인테리어 천장, 등박스
[1층 평면도]|1층면적 : 98.11m²(28.77평)
2층면적 : 48.20m²(14.58평)
전용면적 : 146.31m²(44.26평)
포치 : 39.34평(11.90평)
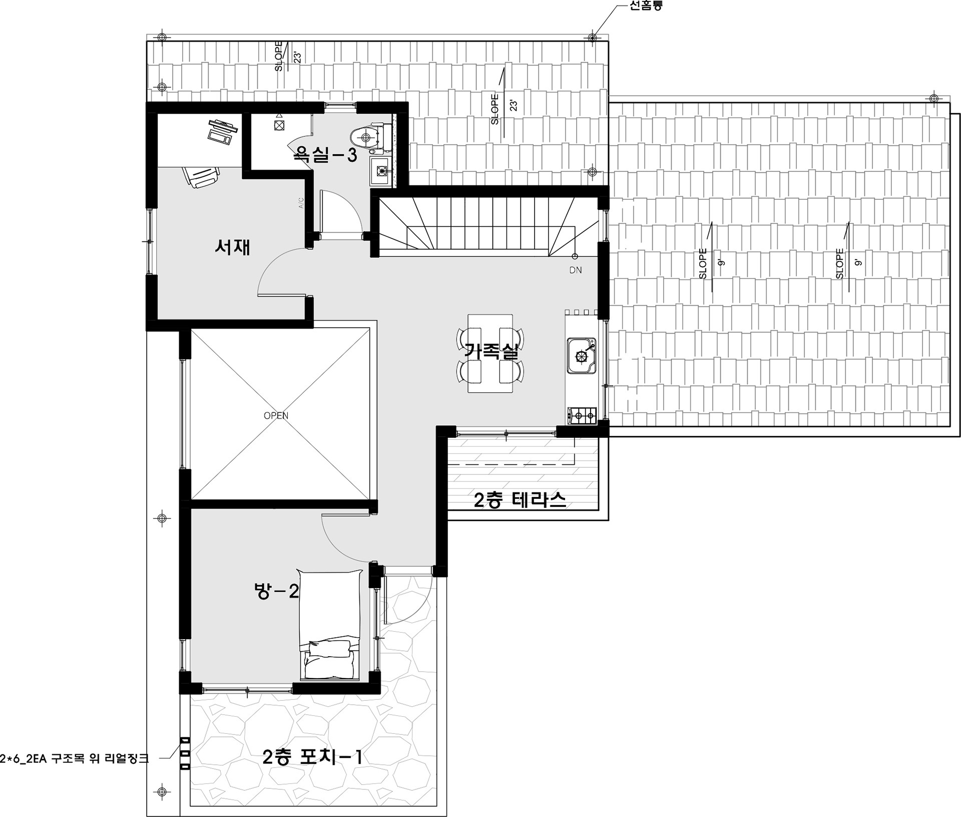
[2층 평면도]|1층면적 : 98.11m²(28.77평)
2층면적 : 48.20m²(14.58평)
전용면적 : 146.31m²(44.26평)
포치 : 39.34평(11.90평)
Related Portfolio
130평 청라 6호
모던주택
70평대이상
ARCHITECTURE
52평형 전북 완주 단지_ B
세미모던
50평대
189평형 인천 청라
모던주택
70평대이상
ARCHITECTURE
EXTERIOR DESIGN
30평형 인천 옹진
세미모던
30평대
ARCHITECTURE
83평형 완주 황운리
모던주택
70평대이상
ARCHITECTURE
60평형 홍천 모곡리
세미모던
60평대
42평형 이천 내촌리
프로방스주택
40평대
ARCHITECTURE
56평형 태안 방갈리
모던주택
50평대
ARCHITECTURE
68평형 대구 수성 황금동
클래식주택
60평대
ARCHITECTURE
68평형 이천 오남리
클래식주택
60평대
ARCHITECTURE
77평형 평창 상안미리
세미모던
70평대이상
ARCHITECTURE
EXTERIOR DESIGN
54평형 울산 신암리
세미모던
50평대
ARCHITECTURE
QUICK MENU
건축상담
가이드북신청
초청장신청
채팅상담
빠른 전화문의
1577-4885
Top
빠른상담
건축상담
가이드북신청
채팅상담