95평형 제주 고내리
  • Type
    설계디자인
  • Classification
    클래식주택
  • Size
    70평대이상
  • Location
    제주(기타도서)
95평형 제주 애월읍 고내리|스터코플렉스의 색대비와 짙은지붕의 조화로 모던하면서 클래식한 분위기의 펜션 및 근린생활시설
4개의 복층형 객실과 2개의 단일 객실로 건축주가 직접 거주하며 운영하는 펜션으로
전체 매스를 두개의 매스로 나누고 전면에 격자면을 사용하여 단조로운 매스를 분절시킴
매스사이의 1층에 근생을 두고 근생상부는 옥상을 두어 다용도로 사용할수있도록 설계
구조 및 규모 : 철근 콘크리트 구조 / 지상2층|지붕재 : 세라믹지붕재
외벽재 : 스타코플렉스
창호재 : 22mm 로이2중유리 미국식 시스템 창호
구조재 : 철근콘크리트
단열재 : 비드법보온판(나등급)
내장재 : 벽지, 아트월, 타일, 디자인판넬
바닥재 : 강마루
천장재 : 인테리어 천장, 우물천정, 등박스
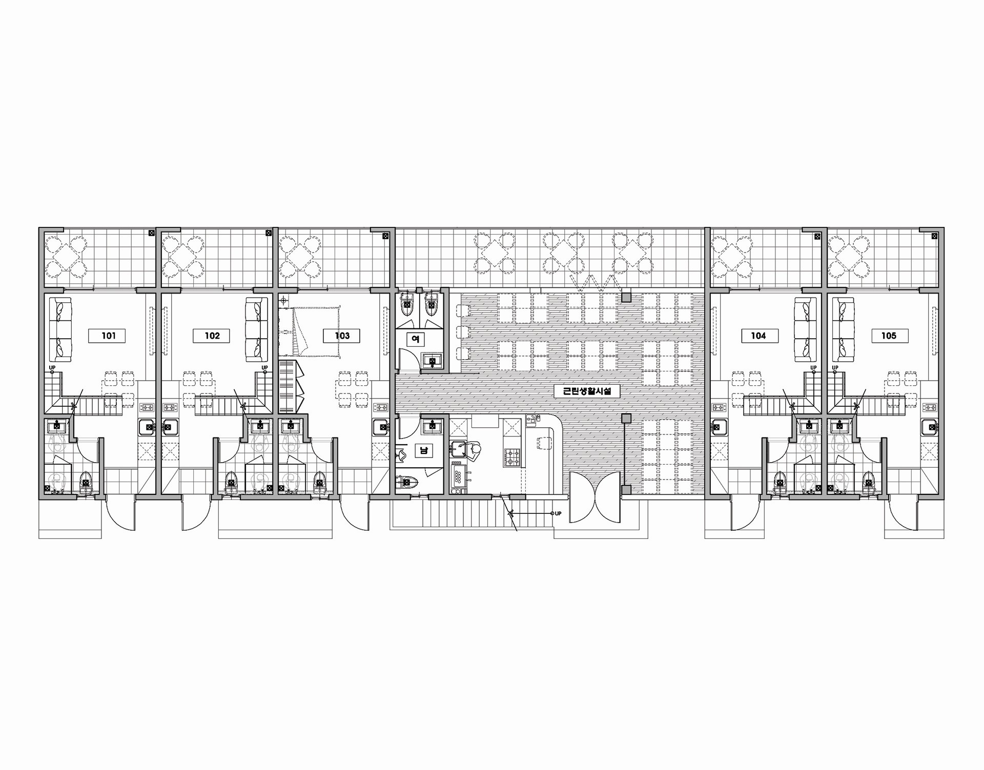
[1층 평면도] |1층면적 : 223.95㎡ (67.74평)
2층면적 : 92.43㎡ (27.96평)
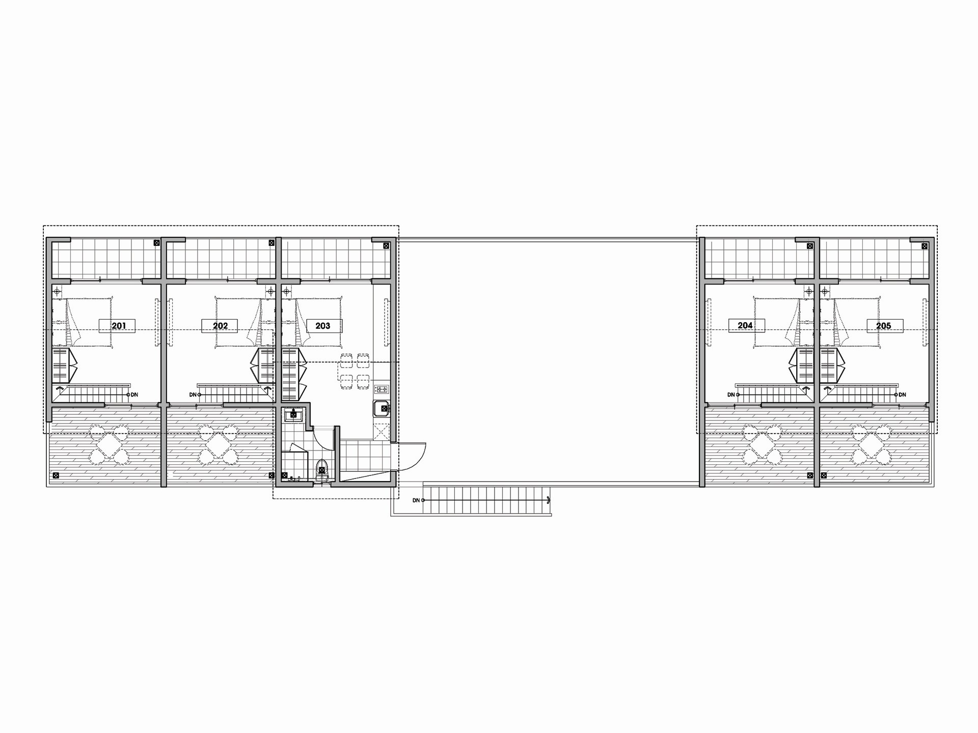
전용면적 : 316.38㎡ (95.70평)
[2층 평면도] |1층면적 : 223.95㎡ (67.74평)
2층면적 : 92.43㎡ (27.96평)
전용면적 : 316.38㎡ (95.70평)