82평형 아산 매곡리
  • Type
    설계디자인
  • Classification
    세미모던
  • Size
    70평대이상
  • Location
    충청도
대지 경사를 이용해서 지하와 지상층에서 건축물로 각각 진입할 수 있도록 기본안을 설정하였다. 지상 일층의 거실과 주방의 천정을 노출시켜 하일실링과 비슷한 효과를 얻고, 2층 침실의 경우 동일한 방법을 이용하여 다락을 활용하였다. 각각의 볼륨마다 경사지붕의 방향을 달리하여 방향에 따라 태양광을 이용하였고, 볼륨감을 이용하여 단조롭지 않은 디자인을 적용하였다.

[구조 및 규모 : 미국식 경량목구조 / 지상2층]
■ 지붕재 : 아스팔트슁글
■ 외벽재 : 현무암, 스타코플렉스, KMEW 14MM 세라믹 사이딩, 합성목재 사이딩(NewTechWood), 현무암 정형 데크, 리얼징크
■ 창호재 : LG 22mm 로이 2중 유리, 독일식 시스템 창호, 슈퍼세이브5일반 창호 (LG Z:IN)
■ 구조재 : 철근콘크리트, SPF NO.2
■ 단열재 : 비드법 2종(외벽:125mm), 인슐레이션(내벽:R-11, 외벽:R-24, 지붕:R-38)
■ 내장재 : 실크벽지, 대리석타일 아트월, 타일, 디자인판넬
■ 바닥재 : 강마루
■ 천장재 : 인테리어 천장, 등박스

[지하 평면도]
■ 지하면적 : 55.79m² (16.88평)
■ 1층 면적 : 111.78m² (33.81평)
■ 2층 면적 : 53.79m² (16.27평)
■ 전용면적 : 221.36m² (66.96평)
■ 다락면적 : 7.74m² ( 2.34평)
■ 포치면적 : 53.43m² (16.16평)

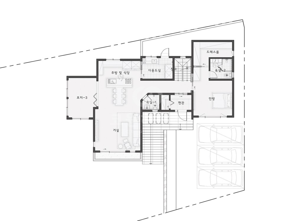
[1층 평면도]
■ 지하면적 : 55.79m² (16.88평)
■ 1층 면적 : 111.78m² (33.81평)
■ 2층 면적 : 53.79m² (16.27평)
■ 전용면적 : 221.36m² (66.96평)
■ 다락면적 : 7.74m² ( 2.34평)
■ 포치면적 : 53.43m² (16.16평)

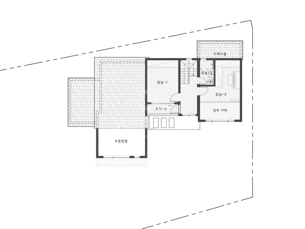
[2층 평면도]
■ 지하면적 : 55.79m² (16.88평)
■ 1층 면적 : 111.78m² (33.81평)
■ 2층 면적 : 53.79m² (16.27평)
■ 전용면적 : 221.36m² (66.96평)
■ 다락면적 : 7.74m² ( 2.34평)
■ 포치면적 : 53.43m² (16.16평)