Main 바로가기

SCROLL DOWN

  • 첫화면
  • 회사소개
  • 포트폴리오
  • 설계디자인
  • 전시장&쇼룸
  • 커뮤니티
  • 상담&신청
  • 로그인
  • 회원가입
  • 첫화면
  • Search
  • Menu
close search
  • 회사소개
  • 포트폴리오
  • 설계디자인
  • 전시장&쇼룸
  • 커뮤니티
  • 상담&신청
  • 로그인
  • 회원가입
back
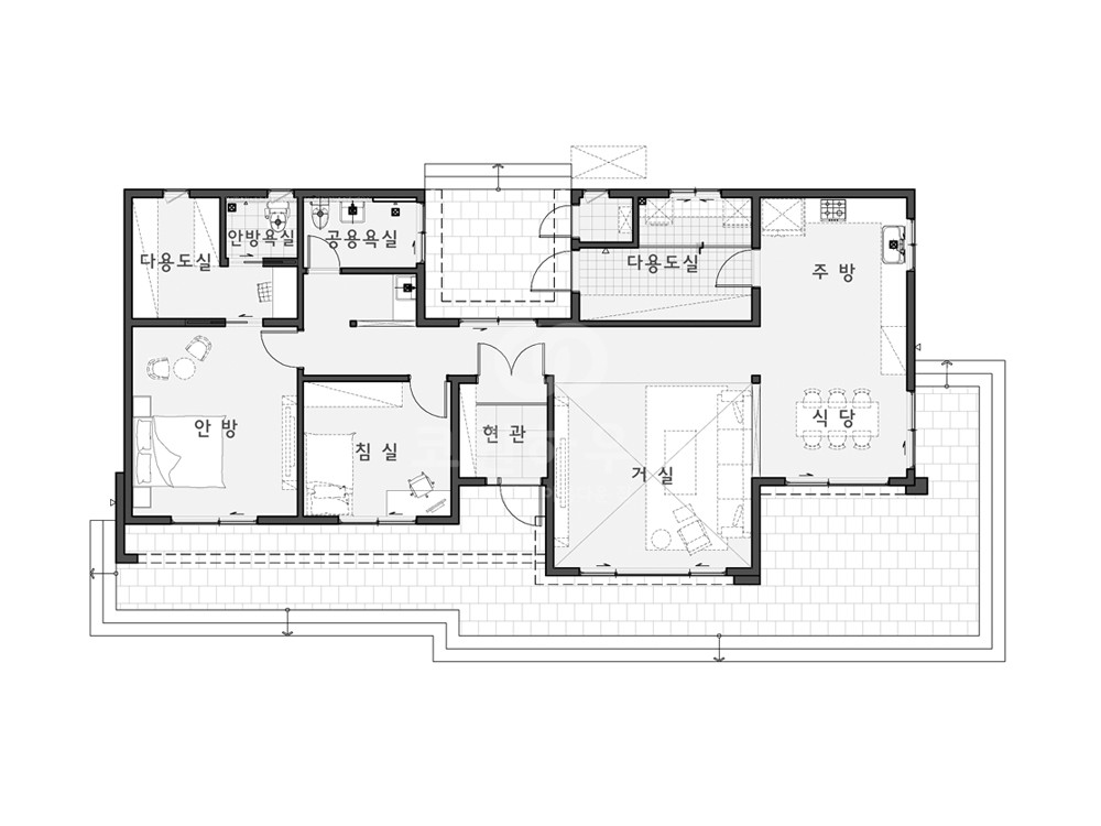
45평형 강원 영월 화원리
  • 모던주택
  • 40평대
  • ARCHITECTURE
  • Type
    설계디자인
  • Classification
    모던주택
  • Size
    40평대
  • Location
    강원도
Related Portfolio
70평형 1월 박람회 모델_가우디Ⅱ
  • 모던주택
  • 70평대이상
  • ARCHITECTURE
78평형 양주 석현리
  • 모던주택
  • 70평대이상
  • ARCHITECTURE
  • EXTERIOR DESIGN
37평형 경주 성건동
  • 클래식주택
  • 30평대
  • ARCHITECTURE
40평형 광주 추자리
  • 클래식주택
  • 40평대
  • ARCHITECTURE
55평형 남동 서창동
  • 클래식주택
  • 50평대
  • ARCHITECTURE
63평형 안성 내방리
  • 클래식주택
  • 60평대
  • ARCHITECTURE
76평형 용인 유운리
  • 세미모던
  • 70평대이상
  • ARCHITECTURE
  • EXTERIOR DESIGN
203평형 제주 애월읍 소길리
  • 모던주택
  • 70평대이상
  • ARCHITECTURE
  • EXTERIOR DESIGN
70평형 경기 시흥 배곧 정왕동 4호
  • 클래식주택
  • 70평대이상
  • ARCHITECTURE
49평형 강릉 유천동
  • 클래식주택
  • 40평대
  • ARCHITECTURE
49평형 양주 석우리
  • 세미모던
  • 40평대
57평형 안성 칠장리
  • 세미모던
  • 50평대
  • ARCHITECTURE
QUICK MENU
  • 건축상담
  • 가이드북신청
  • 초청장신청
  • 채팅상담

빠른 전화문의

1577-4885

Top
  • 건축상담 바로가기
  • 더 많은 시공사례 바로가기
  • 유튜브 바로가기
  • 카카오톡 문의하기
건축상담
코원하우스는 인간중심 설계와 에코디자인을 바탕으로 주거용 건축분야에서 강력한 브랜드를 구축하고 있습니다.
지정요일이 아니더라도 항시 상담 가능합니다.
가이드북 신청하기
코원하우스가 만드는 주택의 건축정보/설계사례/ 시공사례/인테리어사례 등 각종 정보가 들어있습니다.
초청장 신청하기
고객님께서 코원하우스에 가져주신 관심에 진심으로 감사의 마음을 전합니다. 성명을 포함한 기타 항목을 모두 기재하시면 정상접수처리가 됩니다.

주식회사 코원하우스

  • 고객센터 : 1577-4885
  • FAX : 02-562-8752
  • E-mail : coone@coone.co.kr
  • 사업자등록번호 : 119-86-74872
  • 신사옥 본사(모델하우스 & 쇼룸) : 경기도 용인시 처인구 삼계리 56-3
  • 서울지사 : 서울시 강남구 역삼동 706-16 다보빌딩 7층
  • 청라전시장 : 인천 서구 청라동 13-20

개인정보처리방침

Copyright ⓒ CO·ONE HOUSE Co.Ltd. All right Reserved.

Powerd by oparts

  • 빠른상담

  • 건축상담

  • 가이드북신청

  • 채팅상담