97평형 제주 노형동
  • Type
    설계디자인
  • Classification
    모던주택
  • Size
    70평대이상
  • Location
    제주(기타도서)
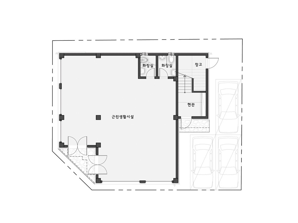
97평형 제주 노형동|코너 대지의 유리함을 이용한 1층의 상가와 2~3층 단독주택으로 설계된 상가주택.
근린생활시설은 코너에서 접근하도록 하고 주택의 주출입은 우측편으로 접근하도록 분리 구성하였다.
주택은 1층 주 계단을 현관으로 이용하여 2층의 공간 활용을 1층까지 가져온 구성으로 총 방4개와 넓은 발코니와 테라스를 활용한 설계이다.
구조 및 규모 : 철근콘크리트구조 / 지상3층|외벽재 : 고벽돌, 청고벽돌, 스타코 플렉스
창호재 : 알루미늄창호, 독일식시스템창호, 파워세이브이중창, 22mm 로이 2중 유리 (LG Z:IN)
구조재 : 철근큰크리트
단열재 : 비드법 2종(외벽:70mm, 지붕:120mm)
내장재 : 실크벽지, 도기질타일, 영림선반 아트월
바닥재 : 에폭시 도장, 강마루, 포셰린타일, 자기질타일
천장재 : 실크벽지, smc 천정재, 스프러스루바
[1층 평면도]|1층면적 : 125.58m²(37.99평)
2층면적 : 99.19m²(30.01평)
3층면적 : 66.00m²(19.96평)
전체면적 : 290.77m²(87.96평)
[2층 평면도]|1층면적 : 125.58m²(37.99평)
2층면적 : 99.19m²(30.01평)
3층면적 : 66.00m²(19.96평)
전체면적 : 290.77m²(87.96평)
[3층 평면도]|1층면적 : 125.58m²(37.99평)
2층면적 : 99.19m²(30.01평)
3층면적 : 66.00m²(19.96평)
전체면적 : 290.77m²(87.96평)