위치
용인시 처인구 포곡읍 유운리
창호재
LG 하우시스 슈퍼로이 3중유리 43T
1층 면적
104.70m² (31.67평)
구조재
철근콘크리트 THK200
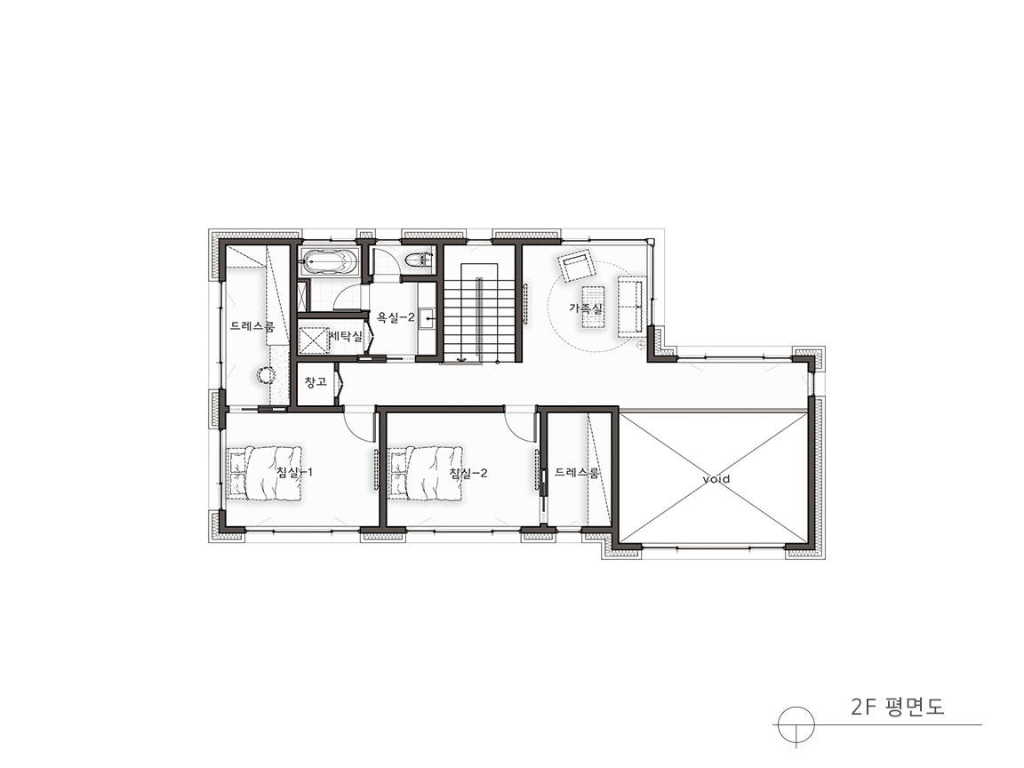
2층 면적
106.35m² (32.17평)
외벽 단열재
비드법보온판 가등급 135mm
전용 면적
211.05m² (63.84평)
기초 단열재
압출법보온판 가등급 125mm
1층 포치
18.57m² (5.62평)
지붕 단열재
비드법보온판 가등급 220mm
1층 테라스
39.14m² (11.84평)
거실상부 OPEN
20.89m² (6.32평)
구조 및 규모
철근콘크리트 / 지상2층
지붕재
징크
외벽재
세라믹타일


