70평형 경기 시흥 배곧 정왕동 4호
  • Type
    설계디자인
  • Classification
    클래식주택
  • Size
    70평대이상
  • Location
    수도권/경기
박공지붕과 평지붕의 조화와 블랙&화이트, 합성목재의 포인트 사용으로 따뜻함을 강조한 현대적인 주택.

넓은 거실과 주방이 한 공간으로 인식되어 더욱 더 넓은 공간감을 선사하며, 다용도실의 수납공간 강화로 인해 주부에게 안성맞춤인 공간계획.
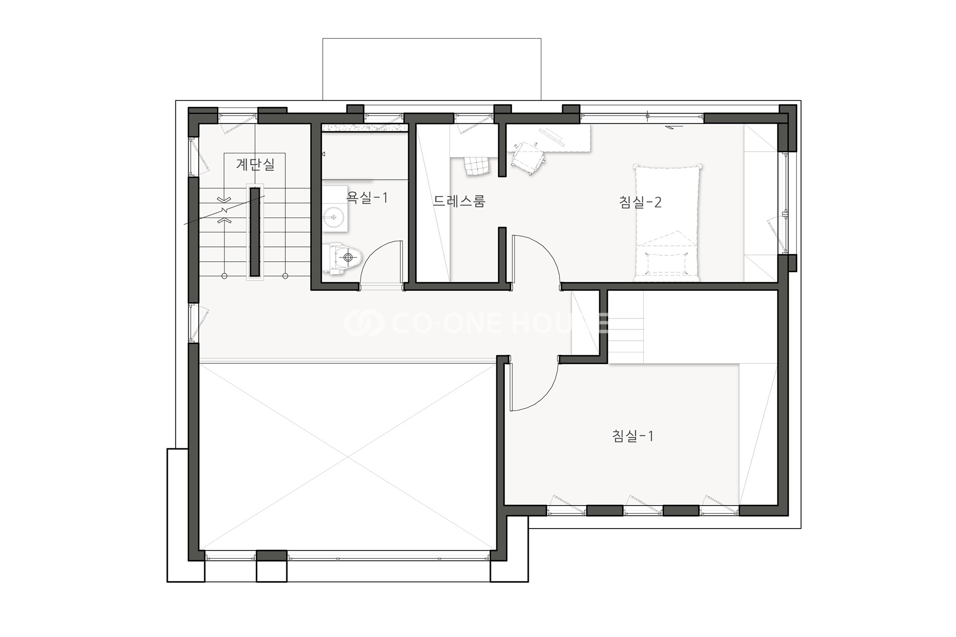
거실 오픈천장으로 2층에서 바라보는 시선은 높은 개방감을 준다.
1층 면적 : 75.26m²(22.77평) [철콘]
2층 면적 : 58.65m²(17.74평) [목조]
3층 면적 : 66.90m²(20.24평) [목조]
전용면적 : 200.81m²(60.75평)


1층 포치 : 3.85m²(1.16평)
오픈천장 : 19.25m²(5.82평)
3층 포치 : 7.72m²(2.34평)

1층 데크 : 32.41m²(9.81평)
3층 테라스 : 3.28m²(0.99평)
구조 및 규모 : 철근콘크리트 + 미국식 경량목구조 / 지상3층
지붕재 : 리얼징크,
외벽재 : 스타코플렉스, 리얼징크 포인트, 현무암판석, 합성목재사이딩 포인트
창호재 : LG 슈퍼세이브5 일반창호 22mm, LG 독일식 시스템창호 31mm
구조재 : SPF NO.2, 철근콘크리트
단열재 : 비드법 보온판(가등급), 인슐레이션(내벽:R-11, 외벽:R-21, 지붕:R-37)
내장재 : 실크벽지, 웨인스코팅 도장, 도기질타일, 포세린타일
바닥재 : 강마루, 포세린타일, 자기질타일
천장재 : 실크벽지, SMC