203평형 제주 애월읍 소길리
  • ARCHITECTURE
  • EXTERIOR DESIGN
  • Type
    설계디자인
  • Classification
    모던주택
  • Size
    70평대이상
  • Location
    제주(기타도서)
CO·ONE’s Solution
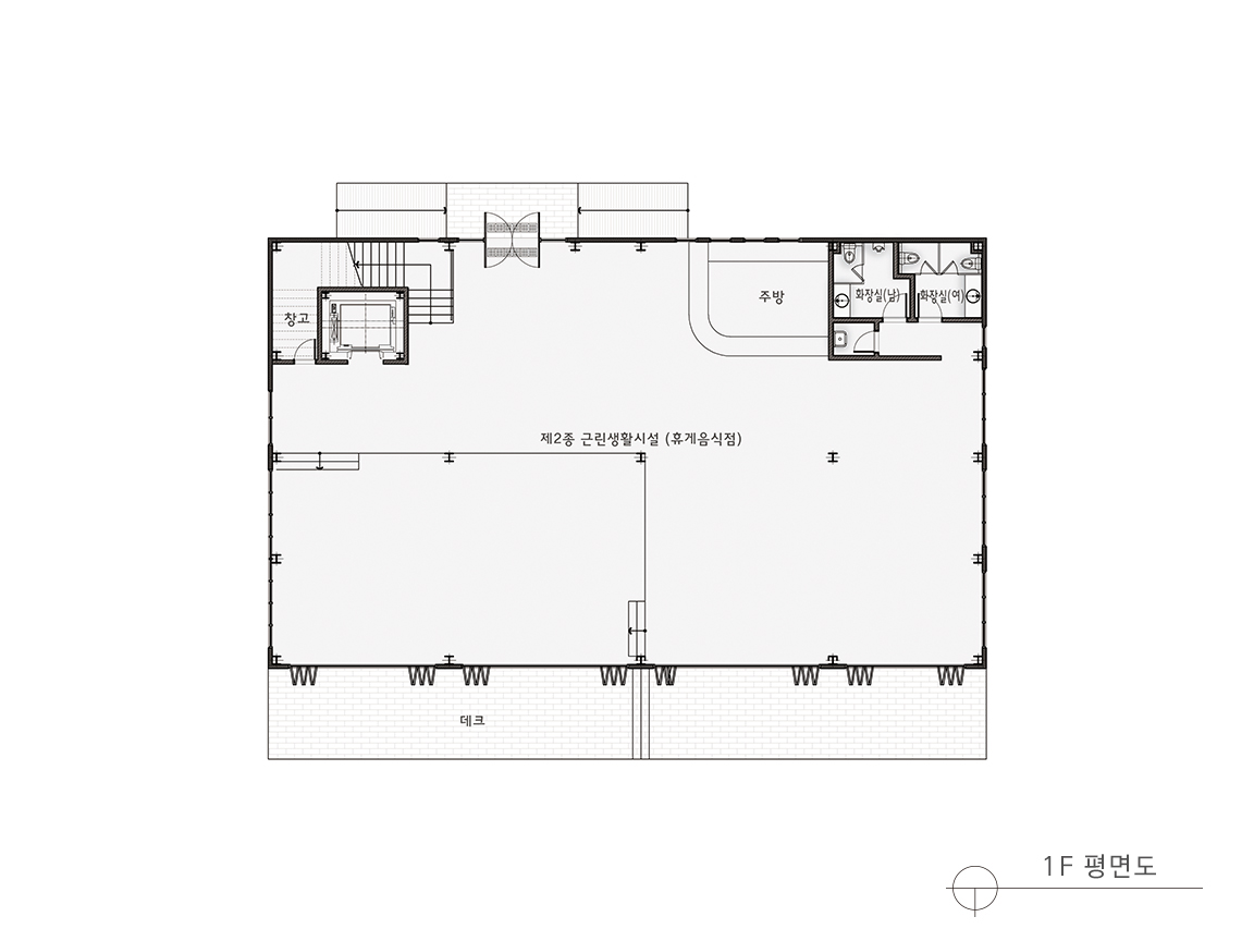
블랙 색상으로 포인트를 주어 모던함이 돋보이는 루프탑이 있는 카페

카페 내부에는 엘리베이터를 설치하여 윗층으로 올라갈수 있도록 하였으며, 1층 전면에는 큰 창문을 설치하여 자연조망을 즐길 수 있도록 하였다.
2층 카페는 내부 공간과 외부공간인 루프탑 공간으로 나뉘어 주변 호수 조망을 볼 수 있도록 하였다.


위치 : 제주 애월읍 소길리
1층 면적 : 403.00m² (121.91평)
2층 면적 : 269.05m² (81.39평)
전용 면적 : 672.05m²(203.30평)
구조 및 규모 : 철골조 / 지상2층
지붕재 : 징크
외벽재 : 징크판넬
구조재 : H형 빔
CO·ONE’s Solution
  • 위치

    제주 애월읍 소길리

  • 1층 면적

    403.00m² (121.91평)

  • 2층 면적

    269.05m² (81.39평)

  • 전용 면적

    672.05m²(203.30평)

  • 구조 및 규모

    철골조 / 지상2층

  • 지붕재

    리얼징크 0.5T

  • 외벽재

    징크판넬

  • 구조재

    H형 빔

Exterior
Interior