Main 바로가기

SCROLL DOWN

  • 첫화면
  • 회사소개
  • 포트폴리오
  • 설계디자인
  • 전시장&쇼룸
  • 커뮤니티
  • 상담&신청
  • 로그인
  • 회원가입
  • 첫화면
  • Search
  • Menu
close search
  • 회사소개
  • 포트폴리오
  • 설계디자인
  • 전시장&쇼룸
  • 커뮤니티
  • 상담&신청
  • 로그인
  • 회원가입
back
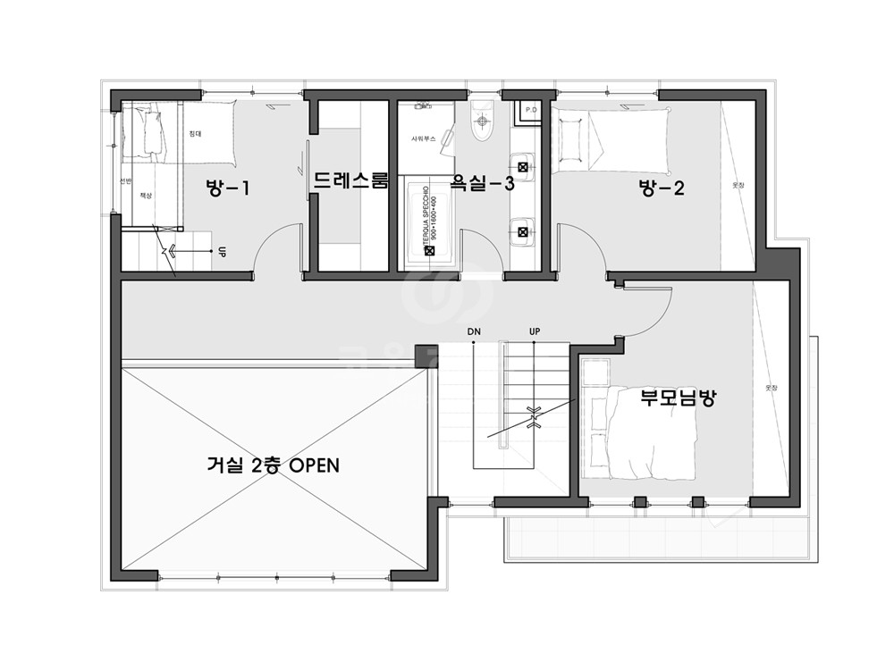
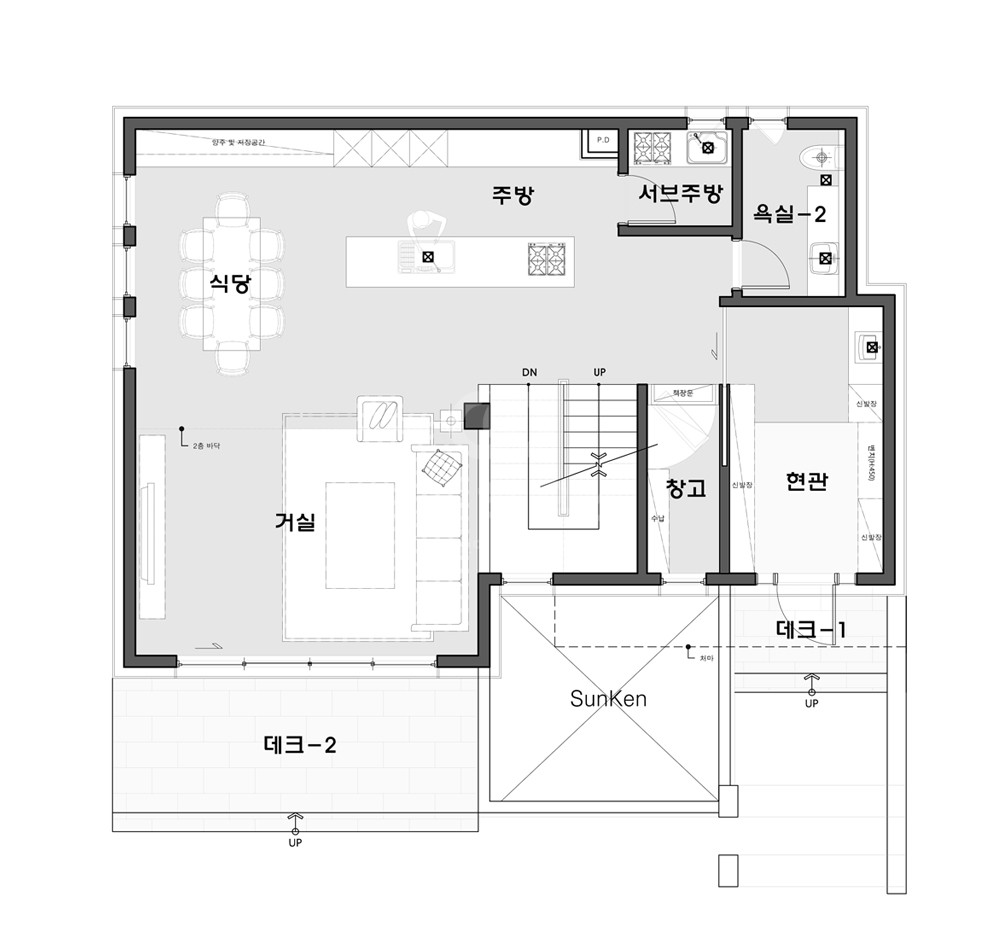
120평형 배곧신도시2호
  • 클래식주택
  • 70평대이상
  • ARCHITECTURE
  • Type
    설계디자인
  • Classification
    클래식주택
  • Size
    70평대이상
  • Location
    수도권/경기
Related Portfolio
189평형 인천 청라
  • 모던주택
  • 70평대이상
  • ARCHITECTURE
  • EXTERIOR DESIGN
63평형 파주 서패동
  • 세미모던
  • 60평대
  • ARCHITECTURE
39평형 광주 영동리
  • 세미모던
  • 30평대
  • ARCHITECTURE
39평형 충북 청주 성산리
  • 클래식주택
  • 30평대
  • ARCHITECTURE
60평형 안동 계평리
  • 모던주택
  • 60평대
  • ARCHITECTURE
68평형 성남 금곡동
  • 세미모던
  • 60평대
  • ARCHITECTURE
110평형 김제 검산동
  • 모던주택
  • 70평대이상
  • ARCHITECTURE
  • EXTERIOR DESIGN
74평형 괴산 이담리
  • 세미모던
  • 70평대이상
  • ARCHITECTURE
  • EXTERIOR DESIGN
68평형 이천 오남리
  • 클래식주택
  • 60평대
  • ARCHITECTURE
67평형 강화 내리 상가주택
  • 모던주택
  • 60평대
  • ARCHITECTURE
67평형 강릉 교항리
  • 모던주택
  • 60평대
50평형 음성 상노리
  • 세미모던
  • 50평대
QUICK MENU
  • 건축상담
  • 가이드북신청
  • 초청장신청
  • 채팅상담

빠른 전화문의

1577-4885

Top
  • 건축상담 바로가기
  • 더 많은 시공사례 바로가기
  • 유튜브 바로가기
  • 카카오톡 문의하기
건축상담
코원하우스는 인간중심 설계와 에코디자인을 바탕으로 주거용 건축분야에서 강력한 브랜드를 구축하고 있습니다.
지정요일이 아니더라도 항시 상담 가능합니다.
가이드북 신청하기
코원하우스가 만드는 주택의 건축정보/설계사례/ 시공사례/인테리어사례 등 각종 정보가 들어있습니다.
초청장 신청하기
고객님께서 코원하우스에 가져주신 관심에 진심으로 감사의 마음을 전합니다. 성명을 포함한 기타 항목을 모두 기재하시면 정상접수처리가 됩니다.

주식회사 코원하우스

  • 고객센터 : 1577-4885
  • FAX : 02-562-8752
  • E-mail : coone@coone.co.kr
  • 사업자등록번호 : 119-86-74872
  • 신사옥 본사(모델하우스 & 쇼룸) : 경기도 용인시 처인구 삼계리 56-3
  • 서울지사 : 서울시 강남구 역삼동 706-16 다보빌딩 7층
  • 청라전시장 : 인천 서구 청라동 13-20

개인정보처리방침

Copyright ⓒ CO·ONE HOUSE Co.Ltd. All right Reserved.

Powerd by oparts

  • 빠른상담

  • 건축상담

  • 가이드북신청

  • 채팅상담