60평형 가평 삼회리
  • ARCHITECTURE
  • Type
    설계디자인
  • Classification
    세미모던
  • Size
    60평대
  • Location
    수도권/경기
60평형 가평 삼회리|두개의 메스를 조화롭게 구성하고 경사대지를 적절히 활용한 모던갤러리
조각가인 건축주를 위해 1층에는 높은 천정고의 갤러리 + 작업 공간을 구성하고
2층에는 건축주가 힘든 작업을 마치고 쉴 수 있는 휴식 공간과 사무 공간을 배치 하였다.
화려한 색의 조각 작품이 돋보일 수 있도록 건물의 전체적인 마감을 흰색으로 하고 검은색의 징크로 포인트를 주었다.
구조 및 규모 : RC구조 / 지상2층|지붕재 : 징크 지붕
외벽재 : 스타코플렉스, 징크
창호재 : 22mm 로이2중유리 독일식 시스템 창호
구조재 : 철근 콘크리트
단열재 : EPS 단열재(외벽:120mm, 지붕:180mm
내장재 : 실크벽지, 도장, 포세린타일, 자기질 타일
바닥재 : 강화마루
천장재 : 인테리어천정, 등박스
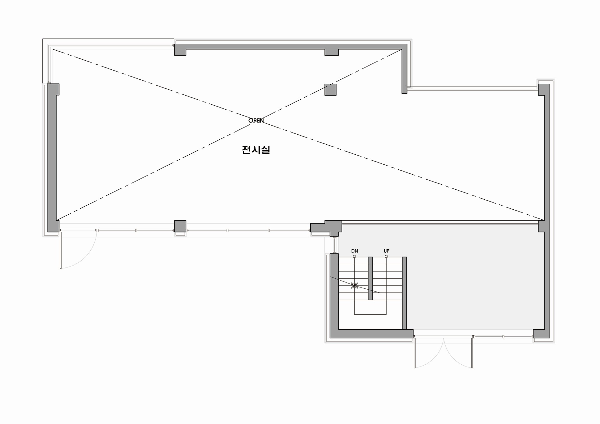
[1층 평면도]|1층면적 : 126.09㎡ (38.14평)
2층면적 : 67.82㎡ (20.52평)
전용면적 : 193.91㎡ (58.66평)
포치 : 25.09㎡(7.6평)
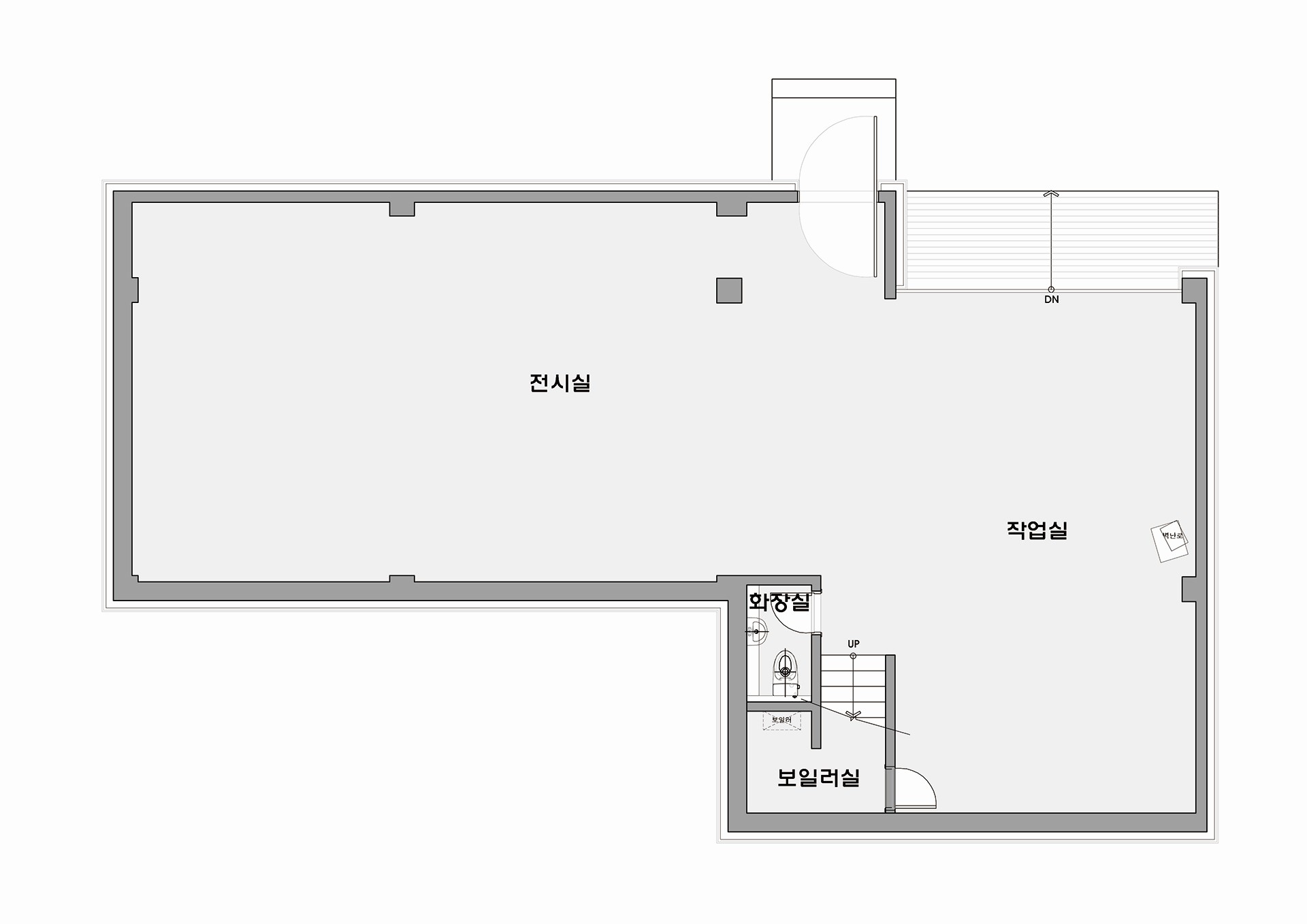
[2층 평면도]|1층면적 : 126.09㎡ (38.14평)
2층면적 : 67.82㎡ (20.52평)
전용면적 : 193.91㎡ (58.66평)
포치 : 25.09㎡(7.6평)
[3층 평면도]|1층면적 : 126.09㎡ (38.14평)
2층면적 : 67.82㎡ (20.52평)
전용면적 : 193.91㎡ (58.66평)
포치 : 25.09㎡(7.6평)