92평형 2017년 1월 박람회
  • Type
    설계디자인
  • Classification
    모던주택
  • Size
    70평대이상
  • Location
    수도권/경기
92평형 2017년 1월 박람회|고급스런 18T 세라믹 외장재에 드넓은 옥상정원의 로망을 품고있는 고급 단독주택.
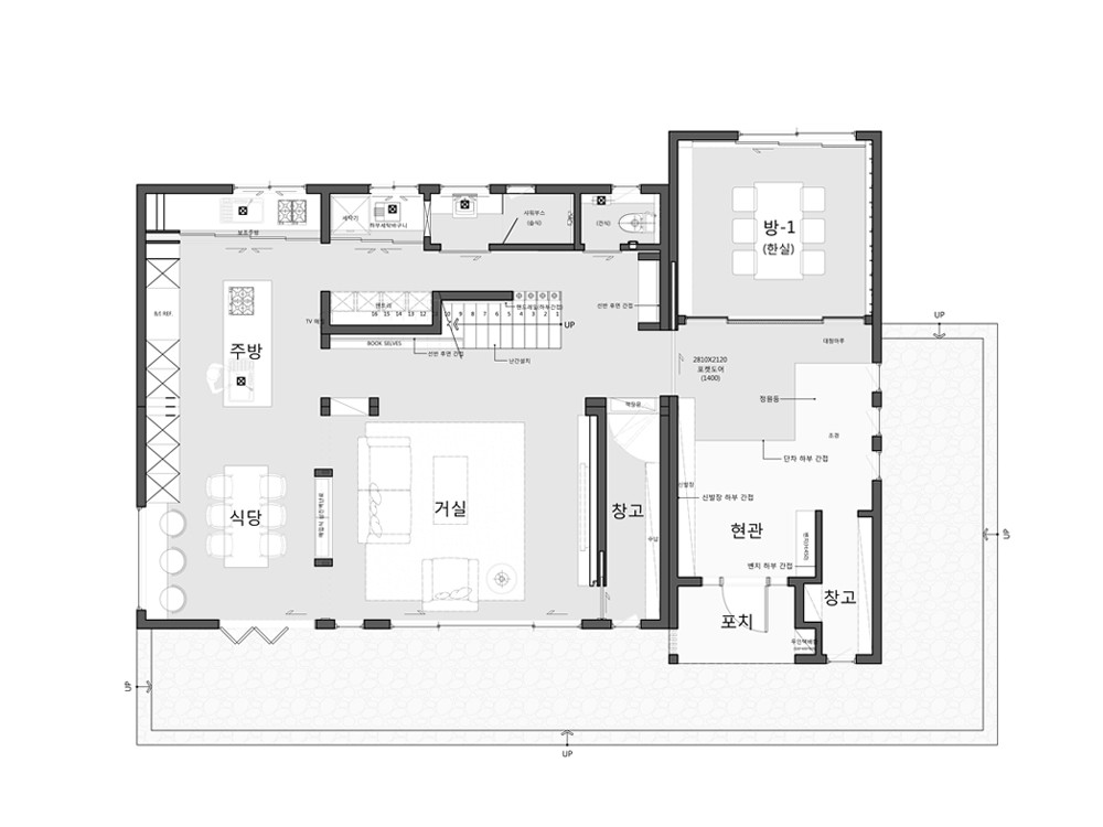
웅장한 현관문을 열고 들어가면 넓게~ 트여져있는 현관의 고급스러운 풍경이 집안을 인도하며, 계단실을 중심적으로 순환할 수 있는 평면구조를 계획하여 주부의 동선을 편리하게 계획하였다.
2층으로 올라가면 다다미방으로 변경 가능한 가족실이 있으며 공간 효율이 돋보이는 아이들의 책상이 배치돼 있으며, 화장실과 욕실을 분리함으로써 사용하기 편리하게 동선을 계획하였다.
또한 여자들의 로망을 실현해 줄 수있는 넓은 드레스룸과 안방의 동선을 편리하게 계획하였다.
구조 및 규모 : 미국식 경량목구조 / 지상1층, 지상2층, 옥탑|지붕재 : 한경인 방수지붕
외벽재 : 스타코플렉스, 세라믹사이딩(18T 토레이), 합성목재(NewTechWood)
창호재 : LG 시스템 창호 31mm 로이 3중 유리, LG 슈퍼세이브5 일반창호 22mm 로이 2중 유리
구조재 : 경량목구조 SPF NO.2
단열재 :인슐레이션(내벽:R-19, 외벽:R-24, 지붕:R-36)
바닥재 :원목마루
천장재 : 간접 등박스, 실크벽지, SMC평천장, 인테리어 필름
[1층 평면도]|1층면적 : 139.80m²(42.29평)
2층면적 : 118.33m²(35.79평)
옥탑면적 : 17.60m²(5.32평)
전체면적 : 275.73m²(83.40평)
[2층 평면도]|1층면적 : 139.80m²(42.29평)
2층면적 : 118.33m²(35.79평)
옥탑면적 : 17.60m²(5.32평)
전체면적 : 275.73m²(83.40평)
[옥탑 평면도]|1층면적 : 139.80m²(42.29평)
2층면적 : 118.33m²(35.79평)
옥탑면적 : 17.60m²(5.32평)
전체면적 : 275.73m²(83.40평)