Main 바로가기
SCROLL DOWN
첫화면
회사소개
포트폴리오
설계디자인
전시장&쇼룸
커뮤니티
상담&신청
로그인
회원가입
첫화면
Search
Menu
back
67평형 강릉 교항리
모던주택
60평대
Type
설계디자인
Classification
모던주택
Size
60평대
Location
강원도
67평형 강릉 교항리|징크와 노출콘크리트 패널로 포인트를 주어 모던함을 더하고, 건물의 전후면 구분이 없도록 각면의 특징을 살린 주택
1층은 많은 가족수를 고려하여 거실과 주방을 넓게 계획하였으며 거실 상부를 하이실링 처리하여 공간이 더욱 넓어 보일 수 있도록 하였다.
2층은 각 방마다 테라스를 두어 주변 풍경을 조망하는데 용이하게 하였다.
구조 및 규모 : 미국식 경량목구조 / 지상2층|지붕재 : 아스팔트슁글
외벽재 : 스타코플렉스, 리얼징크, 노출콘크리트패널
창호재 : 22mm 로이 2중유리 독일식 시스템창호
구조재 : SPF NO.2
단열재 : 인슐레이션(내벽:R-13, 외벽:R-21, 지붕:R-32)
내장재 : 실크벽지, 아트월, 타일, 디자인판넬
바닥재 : 포세린타일, 강마루
천장재 : 인테리어 천장, 등박스
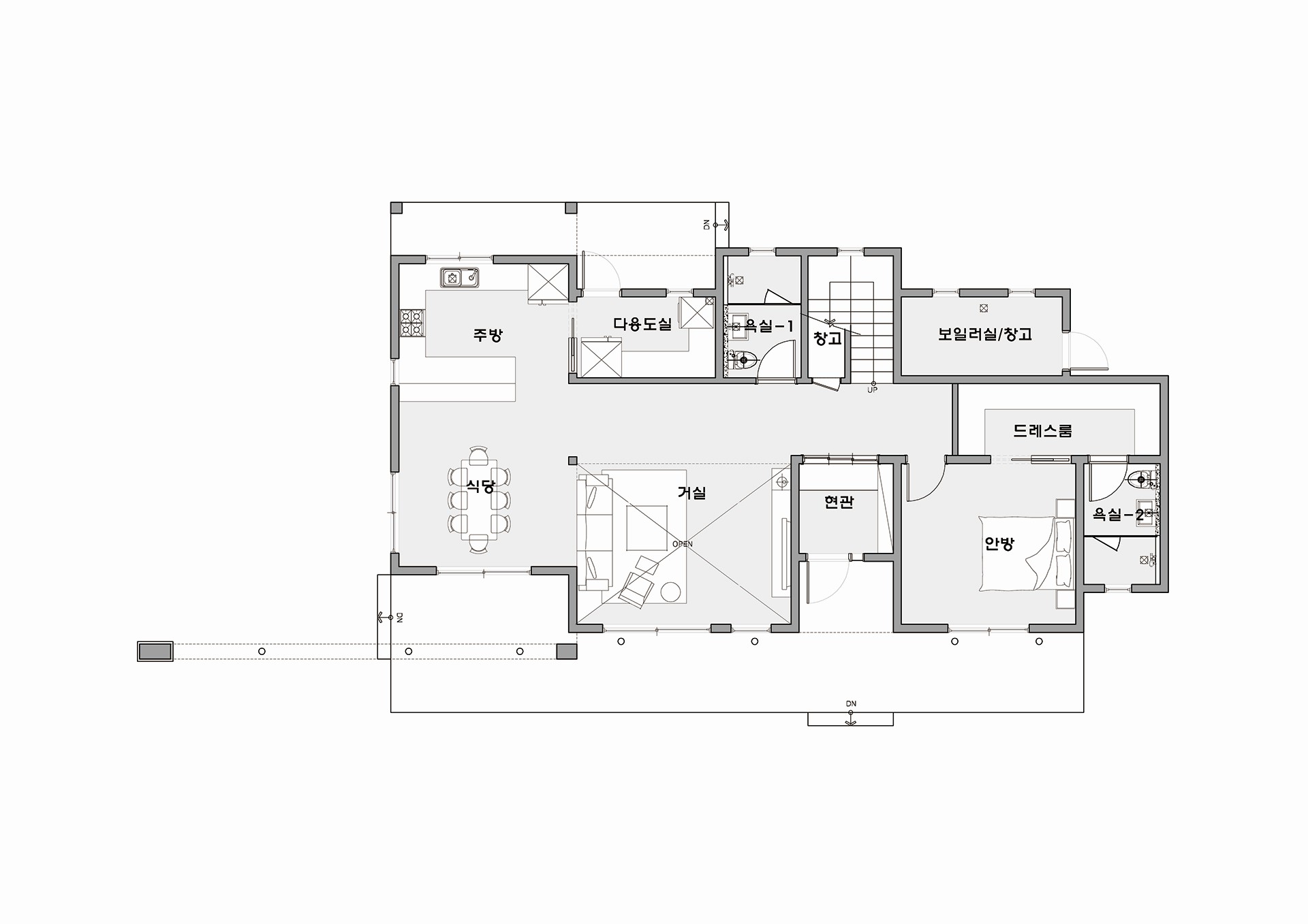
[1층 평면도]|1층면적 : 122.33㎡ (37.01평)
2층면적 : 79.01㎡ (23.90평)
전용면적 : 197.70㎡ (59.80평)
포치+데크 : 23.00+51.22㎡ (22.45평)
[2층 평면도]|1층면적 : 122.33㎡ (37.01평)
2층면적 : 79.01㎡ (23.90평)
전용면적 : 197.70㎡ (59.80평)
포치+데크 : 23.00+51.22㎡ (22.45평)
Related Portfolio
189평형 인천 청라
모던주택
70평대이상
ARCHITECTURE
EXTERIOR DESIGN
53평형 경기도 평택 세교동
세미모던
50평대
ARCHITECTURE
49평형 금산 용화리
모던주택
40평대
ARCHITECTURE
55평형 청라 2호
모던주택
50평대
ARCHITECTURE
74평형 괴산 이담리
세미모던
70평대이상
ARCHITECTURE
EXTERIOR DESIGN
80평형 서구 경서동 청라 19호
모던주택
70평대이상
ARCHITECTURE
78평형 배곧신도시 3호
클래식주택
70평대이상
ARCHITECTURE
60평형 김포 장기동
모던주택
60평대
ARCHITECTURE
43평형 경북 동부리
세미모던
40평대
ARCHITECTURE
150평형 제주 일도이동
모던주택
70평대이상
ARCHITECTURE
55평형 남동 서창동
클래식주택
50평대
ARCHITECTURE
45평형 강릉 여찬리
클래식주택
40평대
ARCHITECTURE
QUICK MENU
건축상담
가이드북신청
초청장신청
채팅상담
빠른 전화문의
1577-4885
Top
빠른상담
건축상담
가이드북신청
채팅상담