Main 바로가기
SCROLL DOWN
첫화면
회사소개
포트폴리오
설계디자인
전시장&쇼룸
커뮤니티
상담&신청
로그인
회원가입
첫화면
Search
Menu
back
63평형 파주 서패동
세미모던
60평대
ARCHITECTURE
Type
설계디자인
Classification
세미모던
Size
60평대
Location
수도권/경기
63평형 파주 서패동|깔끔함이 돋보이는 모임지붕으로 스타코플렉스와
일본 세라믹타일의 외장재로 세련미가 돋보이는 일본식주택
삼대가 같이사는 주택으로써 1층에는 부모님세대가, 2층에는 자녀부부내외가 거주하는 단독주택
구조 및 규모 : 미국식 경량목구조 / 지상2층|지붕재 : 세라믹 기와
외벽재 : 세라믹타일, 스타코플랙스, 적삼목
창호재 : 22mm 로이 2중유리 독일식 시스템창호
구조재 : SPF NO.2
단열재 : 인슐레이션(내벽:R-13, 외벽:R-21, 지붕:R-32)
내장재 : 실크벽지, 아트월, 타일, 디자인판넬
바닥재 : 강화마루
천장재 : 인테리어 천장, 등박스
[1층 평면도]|1층면적 : 109.38m²(33.09평)
2층면적 : 77.61m²(23.48평)
전용면적 : 186.99m²(56.56평)
포치+다락 : 3.29+3.30 (6.59평)
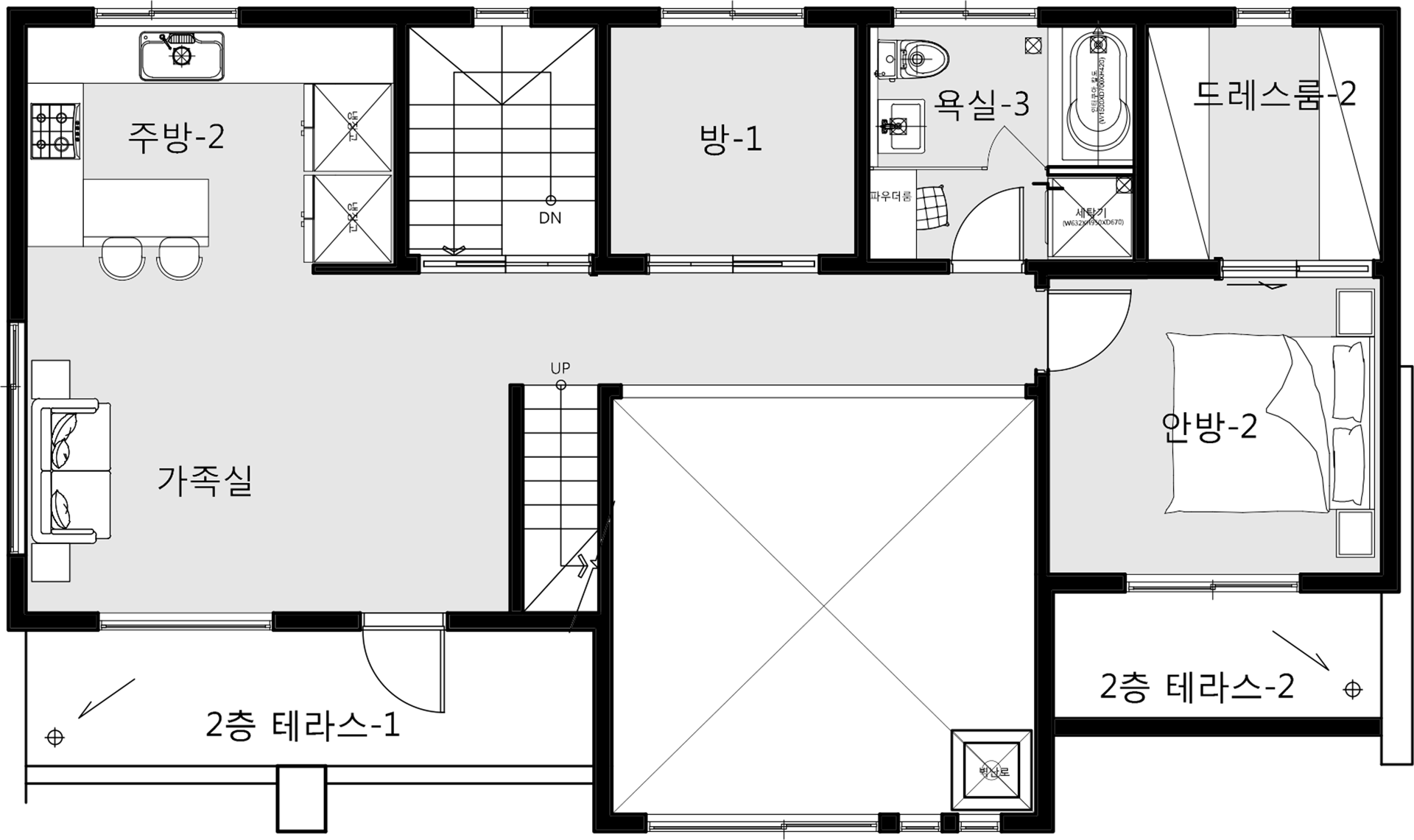
[2층 평면도]|1층면적 : 109.38m²(33.09평)
2층면적 : 77.61m²(23.48평)
전용면적 : 186.99m²(56.56평)
포치+다락 : 3.29+3.30 (6.59평)
Related Portfolio
30평형 당진 그레이스
클래식주택
30평대
ARCHITECTURE
70평형 경기 시흥 배곧 정왕동 4호
클래식주택
70평대이상
ARCHITECTURE
46평형 파주 목동동
모던주택
40평대
ARCHITECTURE
92평형 2017년 1월 박람회
모던주택
70평대이상
ARCHITECTURE
57평형 구례 내서리
세미모던
50평대
ARCHITECTURE
52평형 전주 장동
클래식주택
50평대
ARCHITECTURE
44평형 상주 남적동
클래식주택
40평대
ARCHITECTURE
66평형 춘천 산천리
클래식주택
60평대
55평형 남동 서창동
클래식주택
50평대
ARCHITECTURE
64평형 김포 운양동
모던주택
60평대
ARCHITECTURE
52평형 양평 대흥리
세미모던
50평대
ARCHITECTURE
52평형 보령 의평리
세미모던
50평대
QUICK MENU
건축상담
가이드북신청
초청장신청
채팅상담
빠른 전화문의
1577-4885
Top
빠른상담
건축상담
가이드북신청
채팅상담