278평형 용인 어비리
  • ARCHITECTURE
  • EXTERIOR DESIGN
  • Type
    설계디자인
  • Classification
    모던주택
  • Size
    70평대이상
  • Location
    수도권/경기
CO·ONE’s Solution
200평 대형 베이커리카페

1층 122평, 2층 81평의 대형 베이커리카페 근생시설
알루미늄 판넬로 마감하여 인더스트리얼한 외관으로 디자인 하였다.


본동 1층 : 262.82m² (79.50평)
본동 2층 : 171.14m² (51.77평)
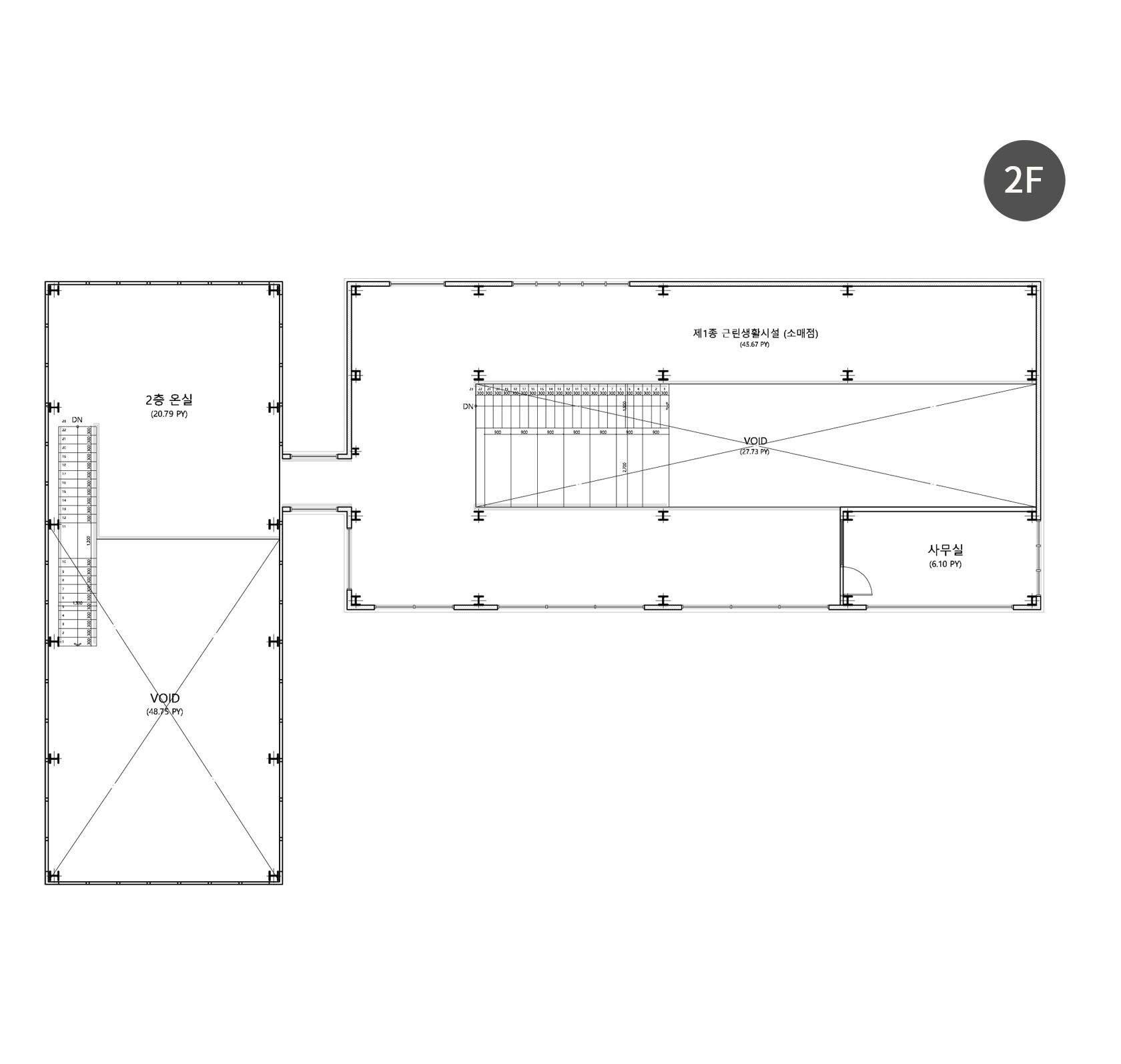
온실 1층 : 161.16m² (48.75평)
온실 2층 : 68.73m² (20.79평)
본동 1층 천장 OPEN : 91.66m² (27.73평)
온실 1층 천장 OPEN : 92.43m² (27.96평)
구조 및 규모 :철골조 / 지상2층
지붕재 : 알루미늄 복합판넬
외벽재 : 알루미늄 복합판넬
창호재 : LG Z:IN 시스템창호 43T 슈퍼로이 3중유리
구조재 : H형 빔
CO·ONE’s Solution
  • 본동 1층

    262.82m² (79.50평)

  • 구조재

    H형 빔

  • 본동 2층

    171.14m² (51.77평)

  • 온실 1층

    161.16m² (48.75평)

  • 온실 2층

    68.73m² (20.79평)

  • 본동 1층 천장 OPEN

    91.66m² (27.73평)

  • 온실 1층 천장 OPEN

    92.43m² (27.96평)

  • 구조 및 규모

    철골조 / 지상2층

  • 지붕재

    알루미늄 복합판넬

  • 외벽재

    알루미늄 복합판넬

  • 창호재

    LG Z:IN 시스템창호 43T 슈퍼로이 3중유리

Exterior
Interior