위치
경남 거창군 거창읍 양평리
구조재
S.P.F 2X6
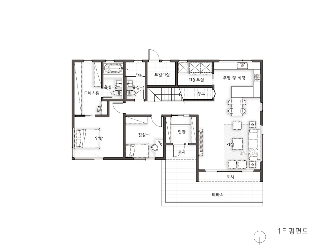
1층 면적
126.06m²(38.13평)
외벽 단열재
인슐레이션 R23 가등급 140mm
전용 면적
126.06m²(38.13평)
내벽 단열재
인슐레이션 R11 다등급 89mm
1층 포치
7.48m²(2.26평)
지붕 단열재
인슐레이션 R37 가등급 220mm
거실상부 OPEN
23.85m²(7.21평)
다락
22.53m²(7.12평)
구조 및 규모
경량목구조 / 지상1층+다락
지붕재
리얼징크 0.5T
외벽재
세라믹타일, 루나우드사이딩
창호재
LG Z:IN 시스템창호 43T 슈퍼로이 3중유리


