Main 바로가기
SCROLL DOWN
첫화면
회사소개
포트폴리오
설계디자인
전시장&쇼룸
커뮤니티
상담&신청
로그인
회원가입
첫화면
Search
Menu
back
60평형 제주 화북이동
클래식주택
60평대
ARCHITECTURE
Type
설계디자인
Classification
클래식주택
Size
60평대
Location
제주(기타도서)
60평형 제주시 화북이동|스타코플렉스의 색조화와 제주특성의 현무암판석의 포인트를 주고 검정기와지붕의 모던&클래식분위기 주택
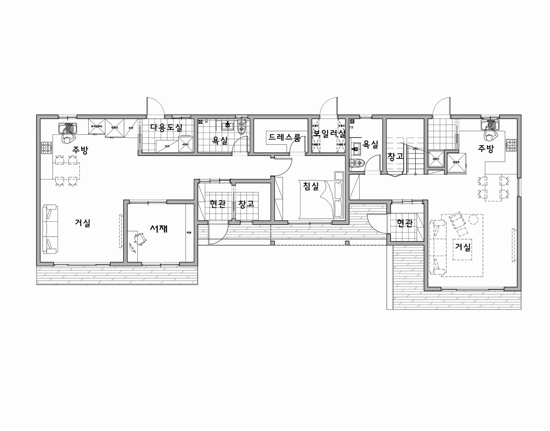
부모님을 모시고 사는 건축주와 부모님의 주거가 독립적으로 구성되면서 같은공간에 함께사는 컨셉으로 설계되었다.
한 대지에서 부모님세대와 아들내외세대가 각각의 출입구를 가지면서 독립적인 생활을 하는동시에
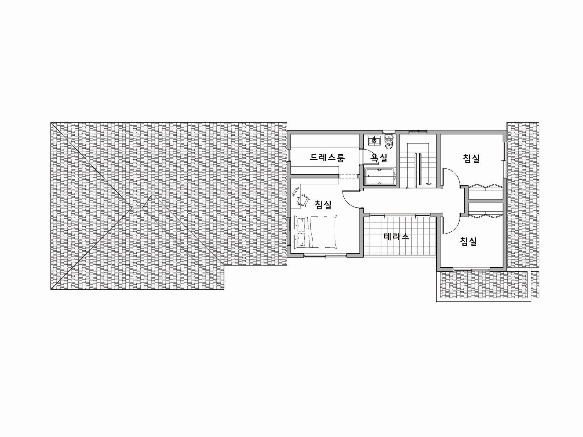
하나의 주택으로 이루어져있고 부모님세대는 1층, 아들내외세대는 2층으로 설계하였다.
구조 및 규모 : 목구조 / 지상2층|지붕재 : 검정기와
외벽재 : 스타코플렉스, 현무암판석
창호재 : 22mm 로이2중유리 독일실 창호
구조재 : 목구조
단열재 : 압출법보온판(가등급)
내장재 : 벽지, 아트월, 타일, 디자인판넬
바닥재 : 포세린타일, 강마루
천장재 : 인테리어 천장, 우물천정, 등박스
[1층 평면도]|1층면적 : 165.53㎡ (50.01평)-데크포함-
2층면적 : 67.22㎡ (20.33평)
전용면적 : 200.50㎡ (60.65평)
포치 : 7.24㎡(2.19평)
[2층 평면도]|1층면적 : 165.53㎡ (50.01평)-데크포함-
2층면적 : 67.22㎡ (20.33평)
전용면적 : 200.50㎡ (60.65평)
포치 : 7.24㎡(2.19평)
Related Portfolio
55평형 거창 양평리
클래식주택
50평대
ARCHITECTURE
EXTERIOR DESIGN
53평형 광주 도수리
클래식주택
50평대
ARCHITECTURE
61평형 경산 울옥리
세미모던
60평대
ARCHITECTURE
63평형 아산 읍내동
모던주택
60평대
ARCHITECTURE
120평형 배곧신도시2호
클래식주택
70평대이상
ARCHITECTURE
97평형 인천 청라지구
모던주택
70평대이상
ARCHITECTURE
93평형 달성 상리
세미모던
70평대이상
ARCHITECTURE
47평형 강화 동막리
세미모던
40평대
ARCHITECTURE
46평형 양평 수능리
클래식주택
40평대
ARCHITECTURE
97평형 용인 보정동
모던주택
70평대이상
ARCHITECTURE
27평형 영월 운학리 1동
모던주택
30평대
ARCHITECTURE
50평형 완도 중도리
클래식주택
50평대
ARCHITECTURE
QUICK MENU
건축상담
가이드북신청
초청장신청
채팅상담
빠른 전화문의
1577-4885
Top
빠른상담
건축상담
가이드북신청
채팅상담