115평형 성남 운중동
  • Type
    설계디자인
  • Classification
    모던주택
  • Size
    70평대이상
  • Location
    수도권/경기
115평형 성남 운중동|서울 도심지 아파트에 거주하며 전원생활을 꿈꾸다 택지계발지역 중심에 토지를 매입해 도심에서 전원생활을 시작하는 건축주님 가족을 위한 모던 형식의 웅장한 주택.
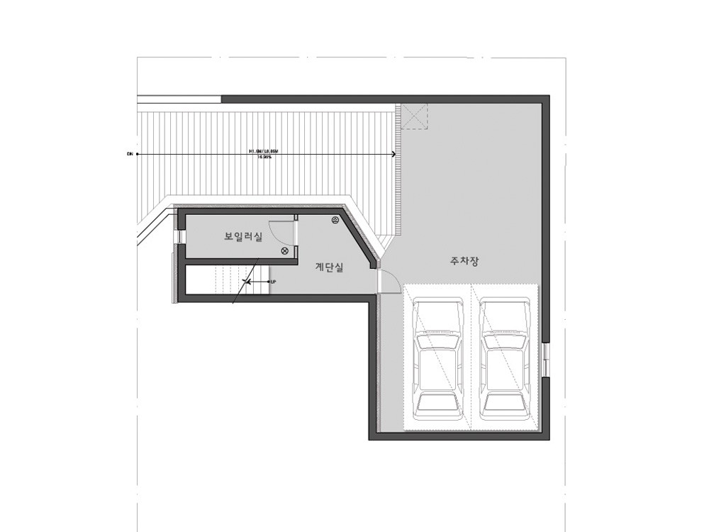
지하주차장을 만들어 지하를 활용하고 자연스럽게 1층의 바닥을 지면을 높이는 설계를 하였다.
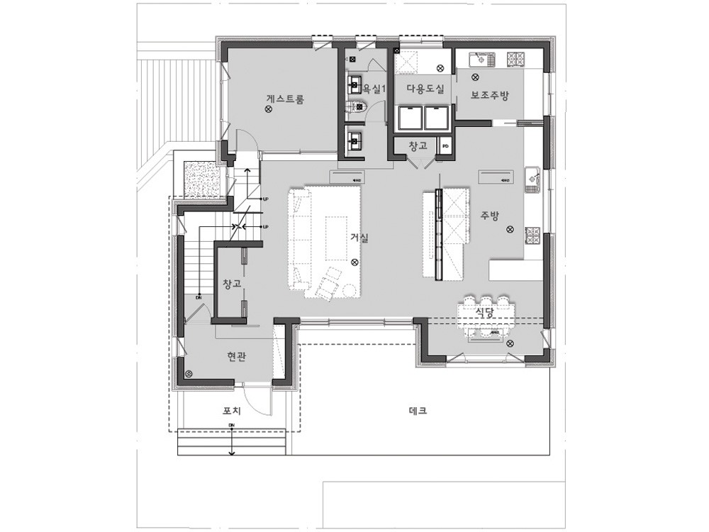
1층의 중심에 넓은 거실이 위치하고 단차가 나는 게스트룸을 두어 공간의 재미를 주었다.
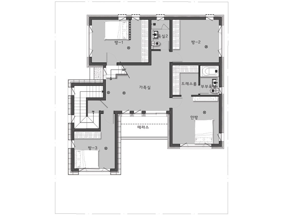
2층은 가족을 위한 공간으로 4개의 방과 2개의 화장실을 설계하였고, 외부조방을 위한 테라스가 있다.
구조 및 규모 : 철근콘크리트 / 지상2층, 지하1층|지붕재 : 철근콘크리트 평지붕
외벽재 : 스타코플렉스, 청고벽돌, 리얼징크, 라임스톤
창호재 : LG 독일식 시스템 창호 24mm 로이 2중 유리
구조재 : 철근콘크리트
단열재 : 비드법 단열재(가등급)
내장재 : 실크벽지, 도기질타일
바닥재 : 대리석마루, 원목마루, 자기질타일, 포셰린타일
천장재 : 세라믹도장, 실크벽지, 간접등박스
[지하1층 평면도]|지하1층면적 : 107.82m²(32.61평)
1층면적 : 123.33m²(37.31평)
2층면적 : 119.44m²(36.13평)
전체면적 : 364.15m²(110.16평)
[1층 평면도]|지하1층면적 : 107.82m²(32.61평)
1층면적 : 123.33m²(37.31평)
2층면적 : 119.44m²(36.13평)
전체면적 : 364.15m²(110.16평)
[2층 평면도]|지하1층면적 : 107.82m²(32.61평)
1층면적 : 123.33m²(37.31평)
2층면적 : 119.44m²(36.13평)
전체면적 : 364.15m²(110.16평)