58평형 수원 금곡동
  • ARCHITECTURE
  • Type
    설계디자인
  • Classification
    모던주택
  • Size
    50평대
  • Location
    수도권/경기
58평형 수원 금곡동|대지형태를 반듯하게 활용하면서 주변 경관과의 조화를 담은 전원주택.
1층에는 필로티 공간을 두어 개방감을 높이도록 하였으며, 거실을 1.5층 높이로 과감하게 높이고 거실 위 2.5층은 방을 두었다.
육중한 외관과는 달리 끊임없는 흥미를 유발하도록 오밀조밀한 내부공간이 연출되도록 계획하였다.
구조 및 규모 : 미국식 경량목구조 / 지상2층|지붕재 : 아스팔트슁글
외벽재 : 스타코플렉스, 세라믹사이딩, 리얼징크, 합성목재 사이딩, 합성목재 데크 (NewTechWood)
창호재 : 22mm 로이 2중 유리, 슈퍼세이브5 (LG Z:IN)
구조재 : SPF NO.2
단열재 : 인슐레이션(내벽:R-11, 외벽:R-24, 지붕:R-38)
내장재 : 실크벽지, 디자인판넬, 도기질타일
바닥재 : 강마루, 포셰린타일, 자기질타일
천장재 : 우물천정 간접등박스, 실크벽지, 스프러스루바, smc평천정
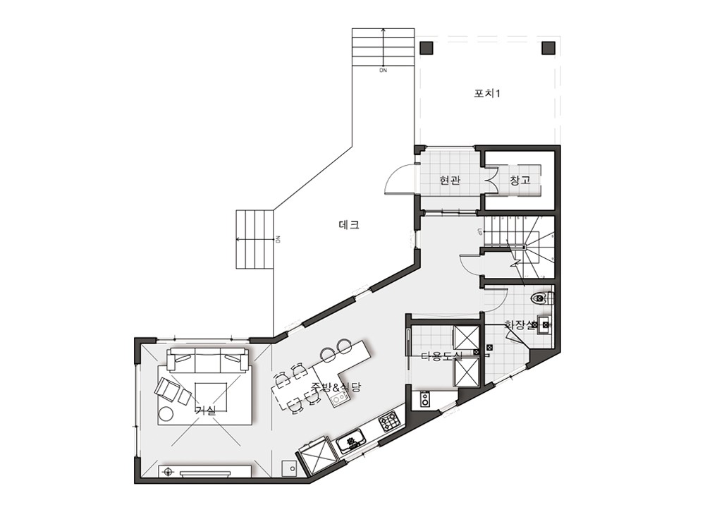
[1층 평면도]|1층면적 : 77.26m²(23.37평)
2층면적 : 68.56m²(20.74평)
2.5층면적 : 18.43m²(5.58평)
전체면적 : 164.25m²(49.69평)
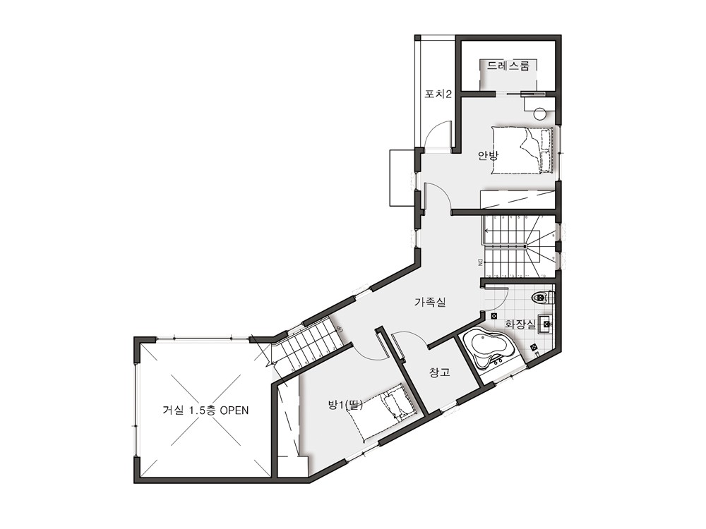
[2층 평면도]|1층면적 : 77.26m²(23.37평)
2층면적 : 68.56m²(20.74평)
2.5층면적 : 18.43m²(5.58평)
전체면적 : 164.25m²(49.69평)
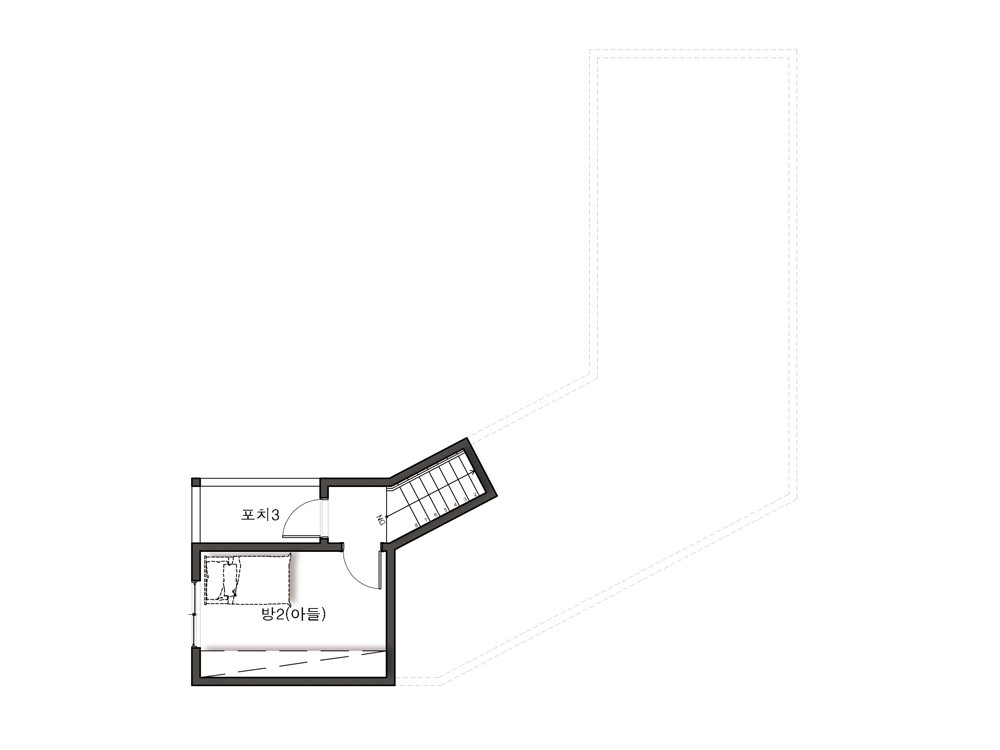
[2.5층 평면도]|1층면적 : 77.26m²(23.37평)
2층면적 : 68.56m²(20.74평)
2.5층면적 : 18.43m²(5.58평)
전체면적 : 164.25m²(49.69평)