위치
진주시 집현면 사촌리
외벽재
벽돌
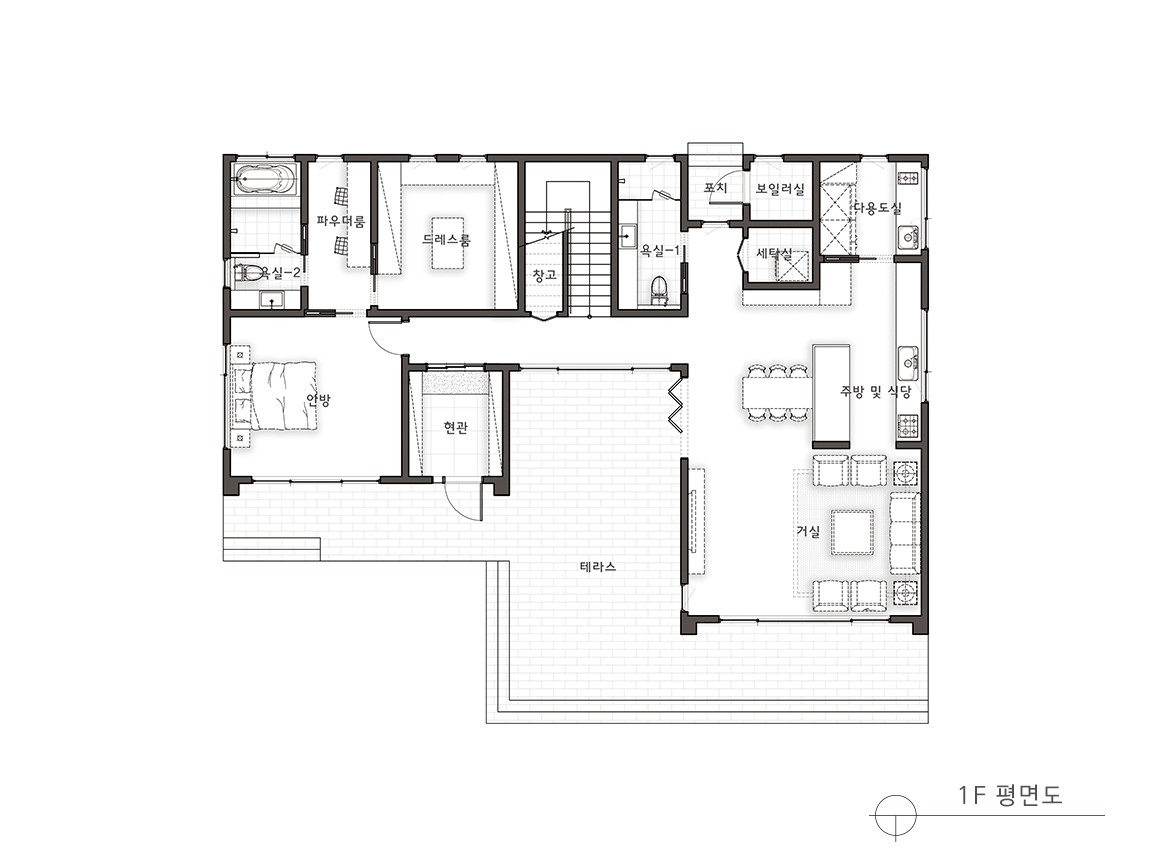
1층 면적
155.66m² (47.09평)
창호재
LG 하우시스 슈퍼로이 3중유리 43T
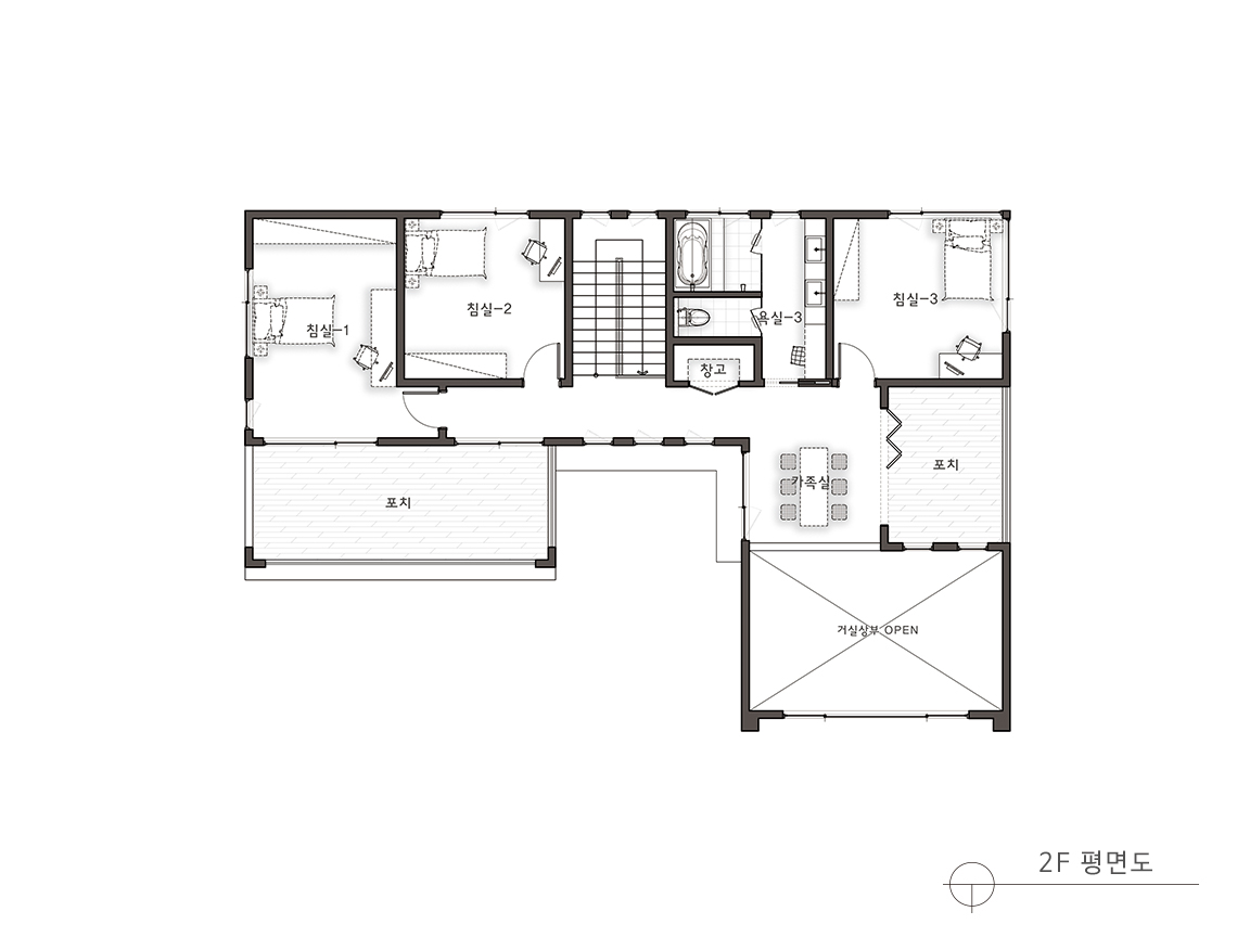
2층 면적
101.72m² (30.77평)
구조재
S.P.F 2X6
전용면적
257.38m² (77.86평)
외벽 단열재
인슐레이션 R23 가등급 140mm
1층 포치
2.72m² (0.82평)
내벽 단열재
인슐레이션 R11 다등급 89mm
2층 포치
32.19m² (9.74평)
지붕 단열재
인슐레이션 R37 가등급 220mm
거실상부 OPEN
24.80m² (7.50평)
1층 테라스
74.04m² (22.40평)
구조 및 규모
경량목구조 / 지상2층
지붕재
AL징크 0.7T


