Main 바로가기
SCROLL DOWN
첫화면
회사소개
포트폴리오
설계디자인
전시장&쇼룸
커뮤니티
상담&신청
로그인
회원가입
첫화면
Search
Menu
back
133평 청라 7호
세미모던
70평대이상
ARCHITECTURE
Type
설계디자인
Classification
세미모던
Size
70평대이상
Location
수도권/경기
133평 청라 7호|스타코플랙스와 고풍스러운 분위기를 내는 청고벽돌을 사용한 상가주택
보행자도로면에 전면성을 부여하여 건물을 장방형으로 계획하였으며,
후면부에는 주택 진입을 위한 별도의 계단실 동을 두어 상가와 주택 간의 동선을 분리하였다.
구조 및 규모 : 철근콘크리트조 / 지상3층|지붕재 : 리얼징크
외벽재 : 스타코플렉스, 청고벽돌, 현무암, 합성목재
창호재 : 16mm 2중창(D230)
구조재 : 철근큰크리트
단열재 : 비드법 2종 (외벽:120mm, 지붕:180mm)
내장재 : 실크벽지, 아트월, 타일, 디자인판넬
바닥재 : 강마루, 포세린타일
천장재 : 인테리어 천장, 등박스
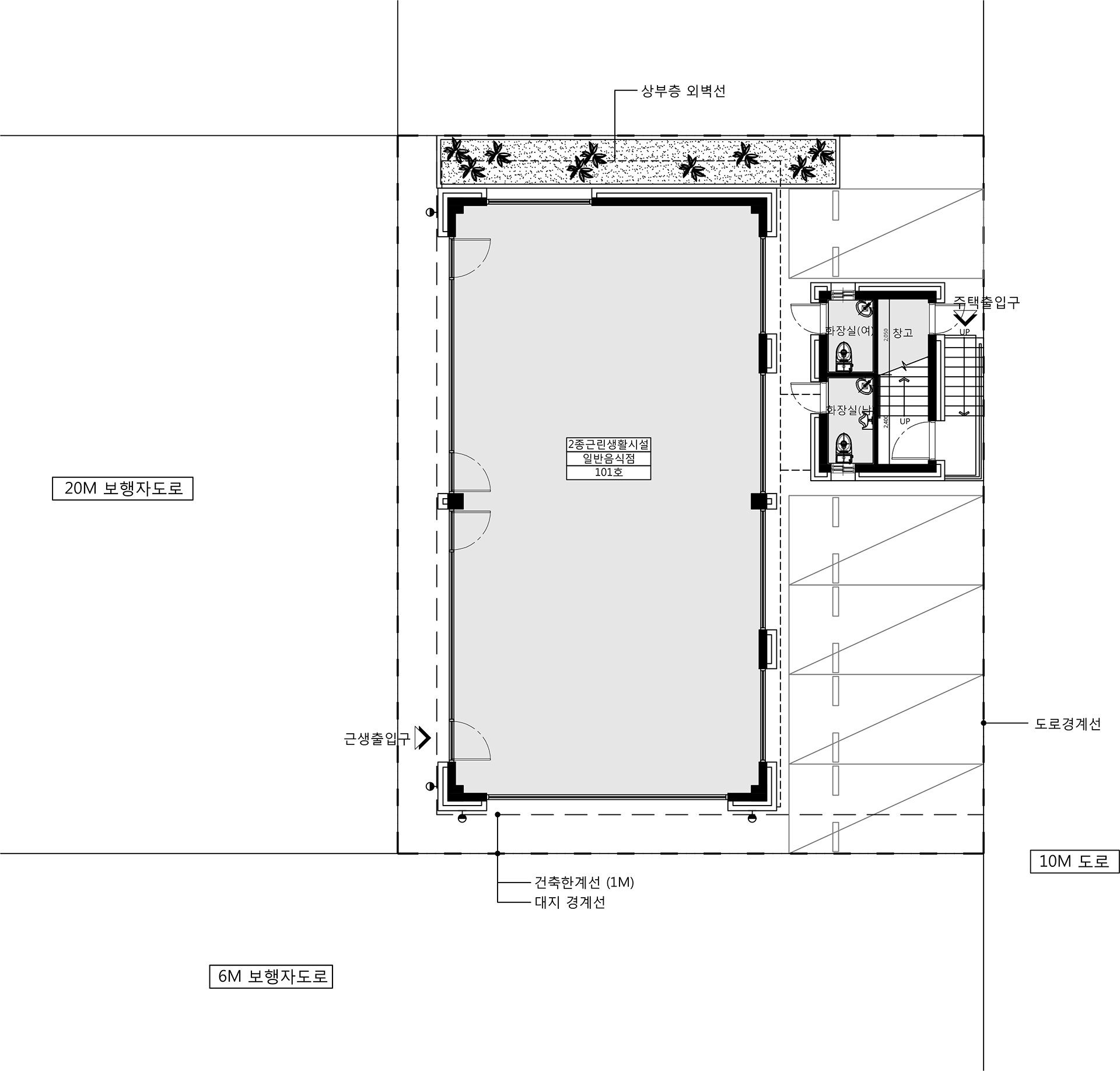
[1층 평면도]|1층(근린생활시설) : 139.70㎡ (42.26평)
2층(다가구주택) : 146.44㎡ (44.30평)
3층(다가구주택) : 138.28㎡ (41.83평)
옥탑 : 7.35㎡ (2.22평)
테라스 : 7.35㎡ (2.22평)
전용면적: 439.12㎡ (132.83평)
[2층 평면도]|1층(근린생활시설) : 139.70㎡ (42.26평)
2층(다가구주택) : 146.44㎡ (44.30평)
3층(다가구주택) : 138.28㎡ (41.83평)
옥탑 : 7.35㎡ (2.22평)
테라스 : 7.35㎡ (2.22평)
전용면적: 439.12㎡ (132.83평)
[3층 평면도]|1층(근린생활시설) : 139.70㎡ (42.26평)
2층(다가구주택) : 146.44㎡ (44.30평)
3층(다가구주택) : 138.28㎡ (41.83평)
옥탑 : 7.35㎡ (2.22평)
테라스 : 7.35㎡ (2.22평)
전용면적: 439.12㎡ (132.83평)
Related Portfolio
47평형 횡성 중금리
프로방스주택
40평대
ARCHITECTURE
45평형 경남 하동 광평리
클래식주택
40평대
ARCHITECTURE
47평형 김포 대능리
세미모던
40평대
ARCHITECTURE
52평형 보령 의평리
세미모던
50평대
70평형 경기 시흥 배곧 정왕동 4호
클래식주택
70평대이상
ARCHITECTURE
49평형 양주 석우리
세미모던
40평대
66평형 하남시 망월동
세미모던
60평대
ARCHITECTURE
50평형 진천 기전리
클래식주택
40평대
ARCHITECTURE
63평형 파주 서패동
세미모던
60평대
ARCHITECTURE
37평형 파주 당하동
클래식주택
30평대
ARCHITECTURE
50평형 음성 상노리
세미모던
50평대
27평형 영월 운학리 1동
모던주택
30평대
ARCHITECTURE
QUICK MENU
건축상담
가이드북신청
초청장신청
채팅상담
빠른 전화문의
1577-4885
Top
빠른상담
건축상담
가이드북신청
채팅상담