78평형 용인 능원_ A
  • Type
    설계디자인
  • Classification
    모던주택
  • Size
    70평대이상
  • Location
    수도권/경기
84평형 용인 능원리|
A동은 건축주 부부의 노후생활 주택, B동은 처제의 세컨드 주택으로 대지의 경사를 활용하여 A동과 B동에 지하주차장과 지하 창고 등을 적용하여 활용하였다. A동 건축주의 기존 가구의 배치를 최대한 활용하였고, 최대한 A동과 B동의 창문이나 시야에 방해되지 않도록 배치와 평면을 구성하였다. A동 정면으로 거실과 2층 방들을 배치하였고, 대지의 좁고 긴 형태에 따라 평면도 좁고 긴 형태로 구성. B동은 일반적은 주택의 구성과 크게 다르지 않지만 2층의 경우 가족실을 가운데로 두고 각 두 침실이 같은 형태로 지낼 수 있도록 설계하였다.
[구조 및 규모 : 철근콘크리트 및 미국식 경량목구조 /지하 1층~지상2층]|
■ 지붕재 : 리얼징크, 아스팔트 슁글
■ 외벽재 : 스타코, 두라스텍 S500, 두라스텍 Q3, , IPE 사이딩, 리얼징크, 현무암 부정형 데크
■ 창호재 : LG 22mm 로이 2중 유리 독일식 시스템 창호, 슈퍼세이브5일반 창호 (LG Z:IN)
■ 구조재 : SPF NO.2
■ 단열재 : 인슐레이션(내벽:R-11, 외벽:R-21, 지붕:R-32)
■ 내장재 : 실크벽지, 대리석타일 아트월, 타일, 디자인판넬■ 바닥재 : 강마루
■ 천장재 : 인테리어 천장, 등박스

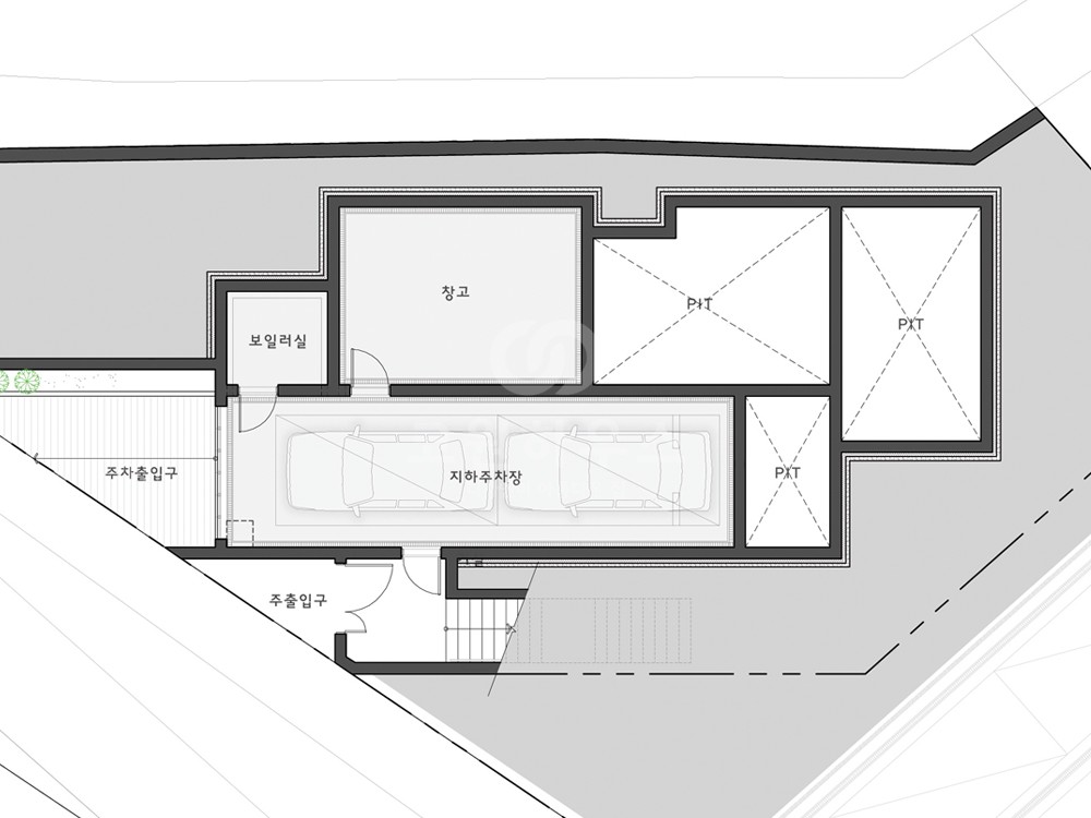
[지하 평면도]|
■ 위치 : 경기도 용인시 처인구 모현면 능원리_A
■ 지하면적 : 74.23m² (22.45평)
■ 1층 면적 : 108.87m² (32.93평)
■ 2층 면적 : 69.54m² (21.04평)
■ 전용면적 : 252.64m² (76.42평)
■ 포치면적 : 3.15m² ( 0.95평)

[1층 평면도]|
■ 위치 : 경기도 용인시 처인구 모현면 능원리_A
■ 지하면적 : 74.23m² (22.45평)
■ 1층 면적 : 108.87m² (32.93평)
■ 2층 면적 : 69.54m² (21.04평)
■ 전용면적 : 252.64m² (76.42평)
■ 포치면적 : 3.15m² ( 0.95평)

[2층 평면도]|
■ 위치 : 경기도 용인시 처인구 모현면 능원리_A
■ 지하면적 : 74.23m² (22.45평)
■ 1층 면적 : 108.87m² (32.93평)
■ 2층 면적 : 69.54m² (21.04평)
■ 전용면적 : 252.64m² (76.42평)
■ 포치면적 : 3.15m² ( 0.95평)