52평형 양평 대흥리
  • ARCHITECTURE
  • Type
    설계디자인
  • Classification
    세미모던
  • Size
    50평대
  • Location
    수도권/경기
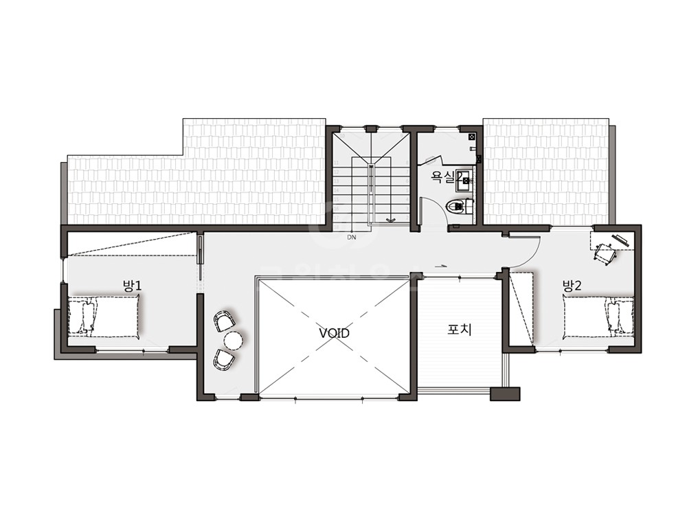
견고하고 안정감 있는 전원주택

건축주 부부의 주생활공간을 넓게 마련하였으며, 2층에는 거실을 중심으로 좌우에 2개의 방을 배치하여 외관이 안정감 있는 집을 계획하였다.

1층 면적 : 95.73m²(28.96평)
2층 면적 : 50.90m²(15.40평)
전용면적 : 146.63m²(44.36평)
포치면적 : 11.44m²( 3.46평)
오픈천정 : 14.19m²( 4.29평)
구조 및 규모 : 미국식 경량목구조 / 지상2층
지붕재 : 아스팔트슁글
외벽재 : 세라믹사이딩, 청고벽돌, 합성목재 데크(NewTechWood)
창호재 : 22mm 로이 2중 유리, 31mm 로이 3중 유리, 독일식시스템창호, 슈퍼세이브5 일반창호(LG Z:IN)
구조재 : SPF NO.2
단열재 : 인슐레이션(내벽:R-11, 외벽:R-24, 지붕:R-38)
내장재 : 실크벽지, 아트월, 타일
바닥재 : 강마루, 타일
천장재 : 인테리어 천장, 등박스