Main 바로가기
SCROLL DOWN
첫화면
회사소개
포트폴리오
설계디자인
전시장&쇼룸
커뮤니티
상담&신청
로그인
회원가입
첫화면
Search
Menu
back
50평형 동해 평릉동 2호
세미모던
50평대
Type
설계디자인
Classification
세미모던
Size
50평대
Location
강원도
50평형 동해 평릉동|모임지붕으로 세련미와 깔금함이 돋보이는 주택 일본공간 구성의 장점을 더한 일본식 주택
배치계획에서 가장 중요하게 생각한 포인트는 시원한 시야를 제공해주는 것이 컨셉이였다.
어느 공간에서나 자연광을 충분히 받아 밝은 느낌이 나도록 계획을 하였고, 테라스의 로망이 담겨있다.
구조및 규모 : 미국식 경량목구조 / 지상 2층|구조재 : SPF NO.2
외벽재 : 세라믹타일, 스타코플랙스
단열재 : 인슐레이션(내벽:R-11, 외벽:R-19, 지붕:R-30)
지붕재 : 세라믹 기와
창호재 : 31mm 로이 3중유리 독일식 시스템창호
내장재 : 실크벽지, 패브릭벽지, 대리석, 타일, 스타일월
바닥재 : 강마루, 폴리싱 타일
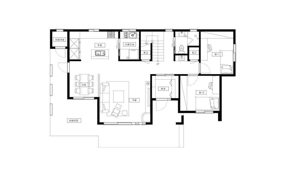
[1층 평명도]|1층면적 : 99.49m2(30py)
2층면적 : 67.33m2(20py)
연면적 : 166.82m2(50py)
[2층 평명도]|1층면적 : 99.49m2(30py)
2층면적 : 67.33m2(20py)
연면적 : 166.82m2(50py)
Related Portfolio
95평형 서구 청라동 청라 18호
클래식주택
70평대이상
ARCHITECTURE
37평형 경주 성건동
클래식주택
30평대
ARCHITECTURE
55평형 보령 소송리
세미모던
50평대
ARCHITECTURE
40평형 광주 추자리
클래식주택
40평대
ARCHITECTURE
60평형 김포 장기동
모던주택
60평대
ARCHITECTURE
133평 청라 7호
세미모던
70평대이상
ARCHITECTURE
80평형 서구 경서동 청라 19호
모던주택
70평대이상
ARCHITECTURE
50평형 칠곡 남계리
프로방스주택
50평대
ARCHITECTURE
59평형 화성 세곡리
세미모던
50평대
ARCHITECTURE
EXTERIOR DESIGN
40평형 인제 남북리
세미모던
40평대
ARCHITECTURE
76평형 용인 유운리
세미모던
70평대이상
ARCHITECTURE
EXTERIOR DESIGN
36평형 봉화 개단리
모던주택
30평대
ARCHITECTURE
QUICK MENU
건축상담
가이드북신청
초청장신청
채팅상담
빠른 전화문의
1577-4885
Top
빠른상담
건축상담
가이드북신청
채팅상담