Main 바로가기
SCROLL DOWN
첫화면
회사소개
포트폴리오
설계디자인
전시장&쇼룸
커뮤니티
상담&신청
로그인
회원가입
첫화면
Search
Menu
back
49평형 양평 다문리
세미모던
40평대
ARCHITECTURE
Type
설계디자인
Classification
세미모던
Size
40평대
Location
수도권/경기
57평형 양평 다문리|아름다운 전원풍경을 감상할수 있도록 넓은테라스를 앞뒤에 배치한 전원형 모던주택
2층 테라스를 앞뒤에 크게 배치하여 전원풍경을 한 눈에 감상할수 있는 장점을 가진 심플한 전원주택
현관옆에 넓은 베란다를 설치하여 활용도를 극대화시킨 고급 전원형 모던주택
구조 및 규모 미국식 경량목구조 / 지상2층|지붕재 세라믹 기와
외벽재 세라믹 타일, 스타코플랙스
창호재 31mm 로이 3중유리 독일식 시스템창호
구조재 SPF NO.2
단열재 인슐레이션 (내벽:R-11, 외벽:R-19, 지붕:R-30)
내장재 실크벽지, 대리석 타일 아트월, 타일, 디자인판넬, 코르크벽지
바닥재 강마루, 폴리싱 타일
천장재 인테리어 천장, 등박스
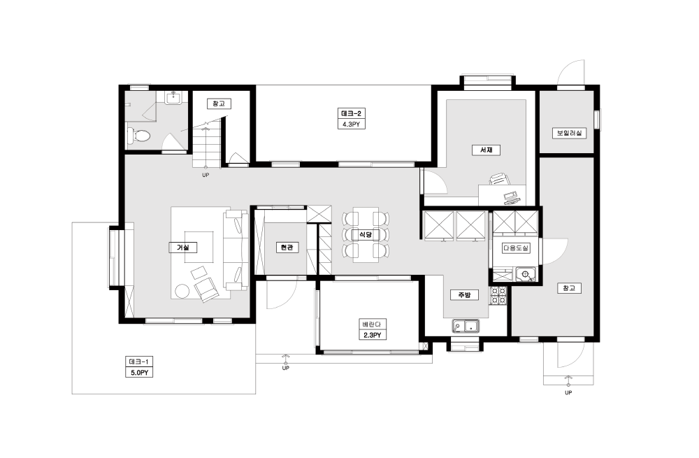
[1층 평면도]|1층면적 96.82m²(29.29평)
2층면적 77.78m²(23.53평)
전용면적 174.60m²(52.82평)
포치(1/2) 10.0평(5.0평)
[2층 평면도]|1층면적 96.82m²(29.29평)
2층면적 77.78m²(23.53평)
전용면적 174.60m²(52.82평)
포치(1/2) 10.0평(5.0평)
Related Portfolio
50평형 제천 도화리
세미모던
40평대
ARCHITECTURE
60평형 제주 화북이동
클래식주택
60평대
ARCHITECTURE
68평형 대구 수성 황금동
클래식주택
60평대
ARCHITECTURE
83평형 완주 황운리
모던주택
70평대이상
ARCHITECTURE
53평형 경기도 평택 세교동
세미모던
50평대
ARCHITECTURE
53평형 완주 원기리
클래식주택
50평대
ARCHITECTURE
65평형 충남 천안 불당동
세미모던
60평대
ARCHITECTURE
54평형 동해 평릉동3호
세미모던
50평대
ARCHITECTURE
65평형 영동군 유곡리
세미모던
60평대
ARCHITECTURE
41평형 고창 산수리
클래식주택
40평대
ARCHITECTURE
50평형 김포 양곡리
모던주택
40평대
ARCHITECTURE
120평형 청라 1호
모던주택
70평대이상
ARCHITECTURE
QUICK MENU
건축상담
가이드북신청
초청장신청
채팅상담
빠른 전화문의
1577-4885
Top
빠른상담
건축상담
가이드북신청
채팅상담