위치
충북 음성군 대소면 삼정리
구조재
S.P.F 2X6
1층 면적
119.09m²(36.02평)
외벽 단열재
인슐레이션 R21 가등급 140mm
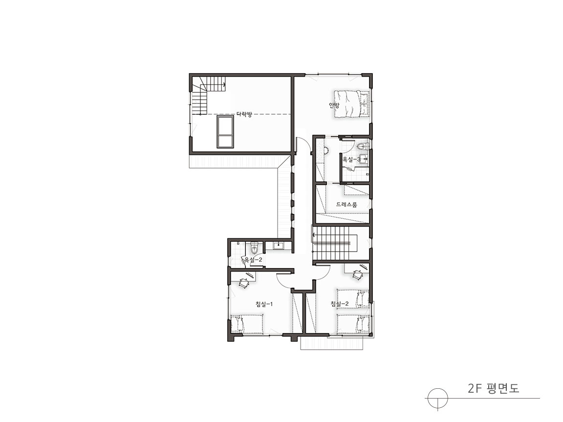
2층 면적
94.98m²(28.73평)
내벽 단열재
인슐레이션 R11 다등급 89mm
전용면적
214.07m²(64.75평)
지붕 단열재
인슐레이션 R37 가등급 220mm
1층 포치
4.56m²(1.38평)
다락
28.67m²(8.67평)
구조 및 규모
경량목구조 / 지상2층
지붕재
징크
외벽재
스페인 적벽돌
창호재
LG 하우시스 슈퍼로이 3중유리 43T


