Main 바로가기
SCROLL DOWN
첫화면
회사소개
포트폴리오
설계디자인
전시장&쇼룸
커뮤니티
상담&신청
로그인
회원가입
첫화면
Search
Menu
back
60평형1월 박람회 모델
모던주택
60평대
ARCHITECTURE
Type
설계디자인
Classification
모던주택
Size
60평대
Location
수도권/경기
60평형1월 박람회 모델|박스형 모던주택으로 외장재를 일본식세라믹 사이팅, 합성목재, 징크를 조화시킨 코원하우스의 고급전원주택
자연채광에 좋은 창이있는 욕실, 수납공간을 최대화한 공간활용. 자연을 바라보면 요리하고 즐기는 오픈키친,
창고를 아웃도어룸으로 진보시킨 혁신적인 모던형 주택.
구조 및 규모 : 미국식 경량목구조 / 지상 2층|구조재 : SPF NO.2
외벽재 : 합성목재(LG 우젠),세라믹사이딩(KMEW),징크(컬러강판)
단열재 : 인슐레이션(내벽:R-11, 외벽:R-19, 지붕:R-30)
지붕재 : 아스팔트 슁글
창호재 : 22mm 로이 2중유리 독일식 시스템창호
내장재 : 실크벽지, 타일, 스타일월
바닥재 : 강마루
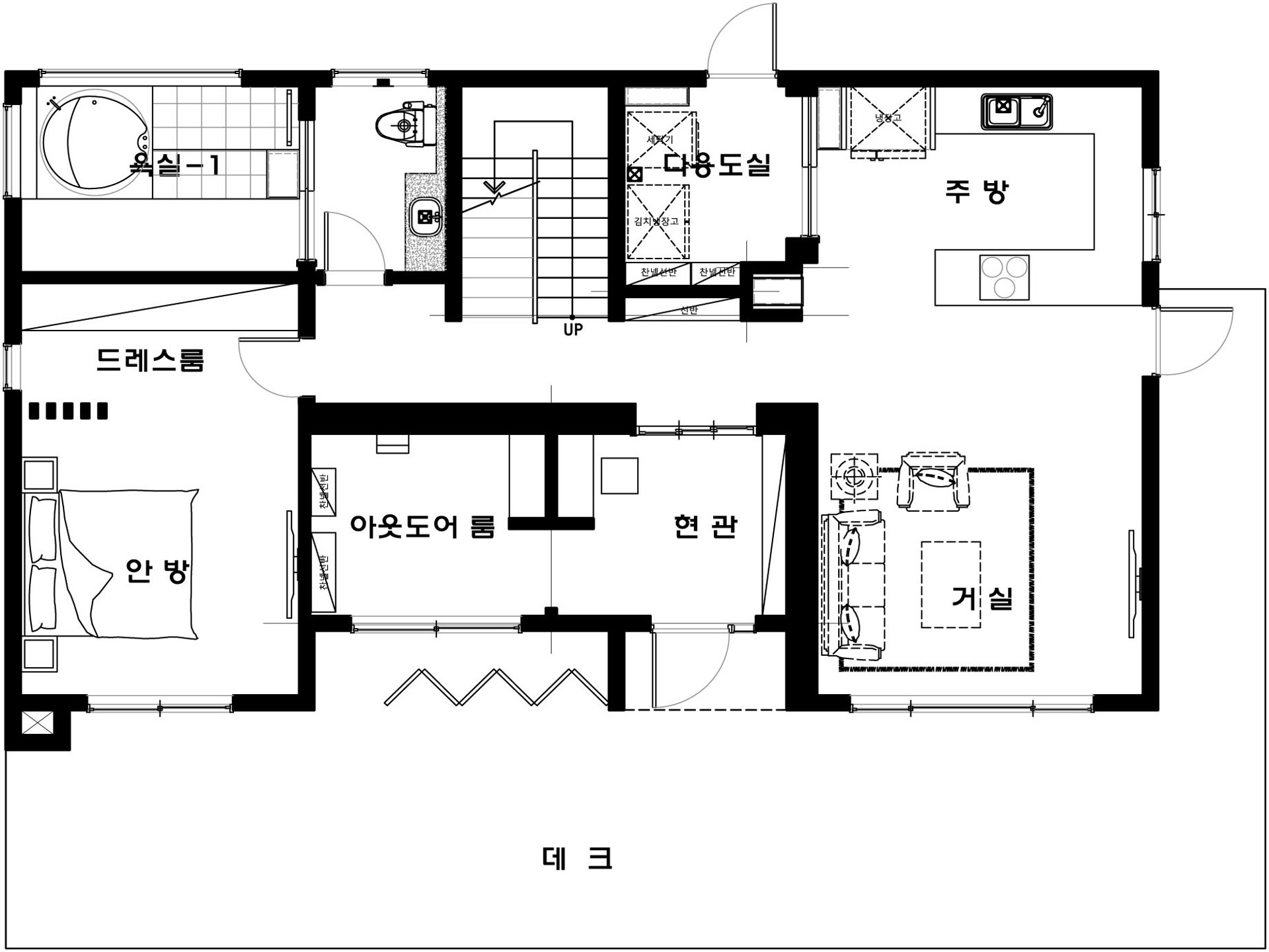
[1층 평면도]|1층면적 : 104.69m2(31.67py)
2층면적 : 60.53m2(18.31py)
포치면적: 33.23m2(10.05py)
연면적 : 198.45m2(60.03py)
[2층 평면도]|1층면적 : 104.69m2(31.67py)
2층면적 : 60.53m2(18.31py)
포치면적: 33.23m2(10.05py)
연면적 : 198.45m2(60.03py)
Related Portfolio
63평형 안성 내방리
클래식주택
60평대
ARCHITECTURE
64평형 김포 운양동
모던주택
60평대
ARCHITECTURE
49평형 강릉 유천동
클래식주택
40평대
ARCHITECTURE
51평형 옹진 선재리
모던주택
50평대
ARCHITECTURE
74평형 괴산 이담리
세미모던
70평대이상
ARCHITECTURE
EXTERIOR DESIGN
68평형 이천 오남리
클래식주택
60평대
ARCHITECTURE
60평형 김포 장기동
모던주택
60평대
ARCHITECTURE
49평형 경산 울옥리2
모던주택
40평대
ARCHITECTURE
74평 칠곡 득명리
모던주택
70평대이상
ARCHITECTURE
EXTERIOR DESIGN
84평형 용인 능원리_ B
모던주택
70평대이상
ARCHITECTURE
86평형 순천 쌍지리
모던주택
70평대이상
ARCHITECTURE
EXTERIOR DESIGN
48평형 광주 목동
모던주택
40평대
ARCHITECTURE
QUICK MENU
건축상담
가이드북신청
초청장신청
채팅상담
빠른 전화문의
1577-4885
Top
빠른상담
건축상담
가이드북신청
채팅상담